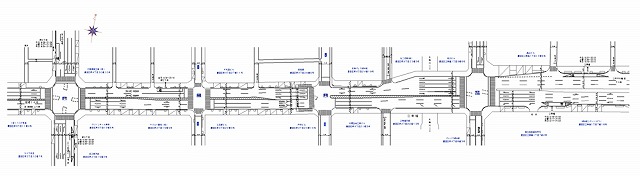
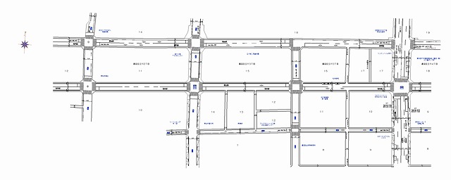
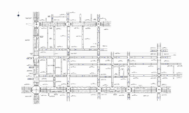
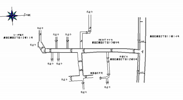
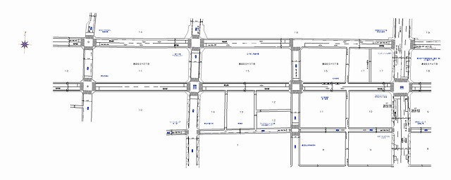
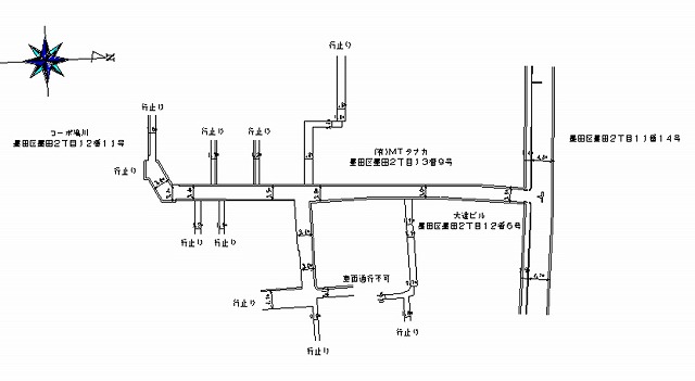
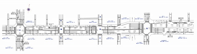
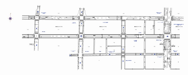
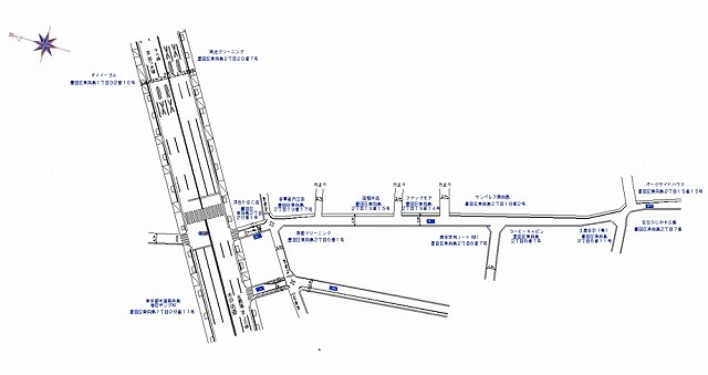
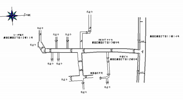
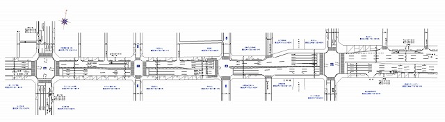
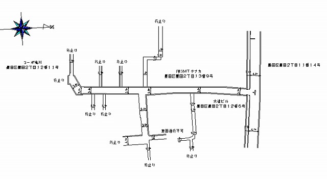
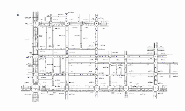
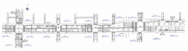
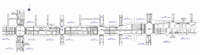
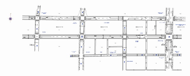
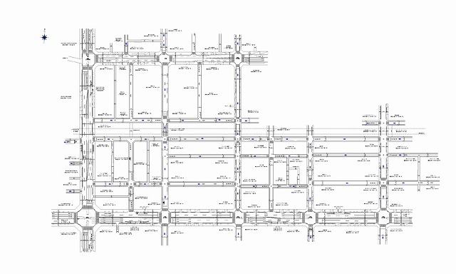
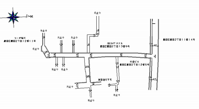
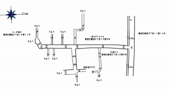
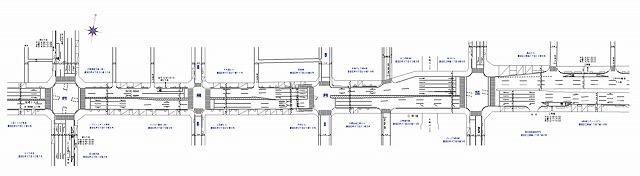
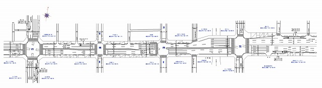
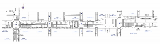
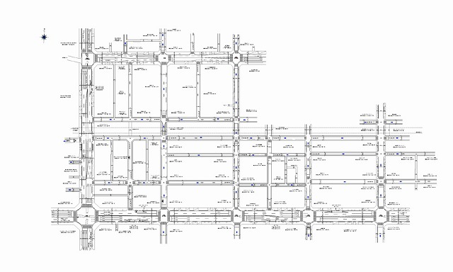
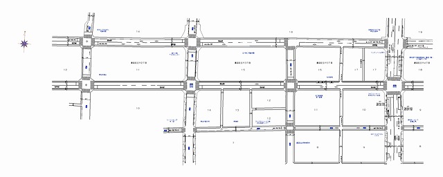
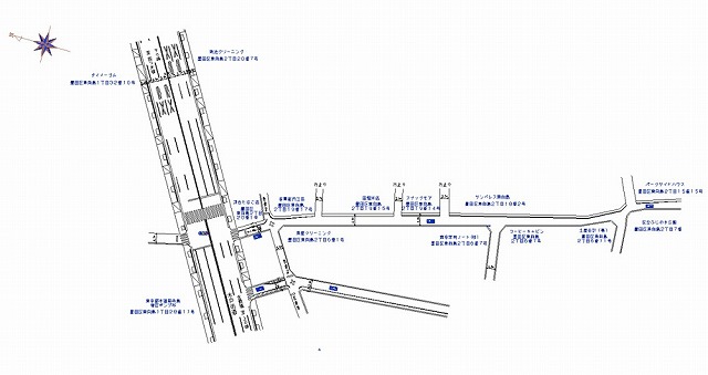
東京都 墨田区実績のご案内。24条申請に必要な交通規制図、道路規制図作成はTPN。作業帯図作成から交通量調査、竣工図作成もお任せください。

東京都 墨田区
| 本線名 |
左端 |
右端 |
規制図 |
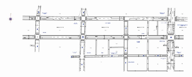
| 浅草通り/清澄通り/墨堤通り/三ツ目通り |
東駒形1丁目 |
吾妻橋3丁目 |
|
| 浅草通り/墨堤通り |
吾妻橋2丁目 |
吾妻橋1丁目 |
|
| 明治通り |
文花2丁目 |
立花1丁目 |
|
| 曳舟川通り |
押上2丁目 |
押上2丁目 |
|
| 三ツ目通り/新大橋通り |
立川4丁目 |
白川4丁目 |
|
| 国技館通り |
横網2丁目 |
本所1丁目 |
|
| |
東駒形1丁目 |
東駒形1丁目 |
|
| |
堤通2丁目 |
堤通2丁目 |
|
| 明治通り |
堤通1丁目 |
堤通2丁目 |
|
| 清澄通り/蔵前橋通り |
横網2丁目 |
亀沢1丁目 |
|
| 平井街道 |
立花6丁目 |
立花4丁目 |
|
| 桜橋通り/曳舟川通り/小梅通り |
押上2丁目 |
向島3丁目 |
|
| 清澄通り/春日通り/蔵前橋通り |
本所1丁目 |
石原1丁目 |
|
| 浅草通り/清澄通り/墨堤通り/三ツ目通り |
東駒形1丁目 |
吾妻橋3丁目 |
|
| 新あづま通り |
押上1丁目 |
京島2丁目 |
|
| |
千住曙町 |
墨田5丁目 |
|
| 国道14号 |
両国4丁目 |
緑3丁目 |
|
| 国道14号 |
両国4丁目 |
両国4丁目 |
|
| 桜橋通り |
向島4丁目 |
押上1丁目 |
|
| 墨堤通り |
吾妻橋1丁目 |
吾妻橋1丁目 |
|
| 国道6号 |
八広4丁目 |
四つ木3丁目 |
|
| 清澄通り |
千歳3丁目 |
森下2丁目 |
|
| 国道6号 |
東向島6丁目 |
八広6丁目 |
|
| 浅草通り |
横川1丁目 |
業平2丁目 |
|
| |
堤通1丁目 |
墨田5丁目 |
|
| 水戸街道 |
東向島1丁目 |
東向島1丁目 |
|
| 水戸街道 |
東向島2丁目 |
東向島2丁目 |
|
| 言問通り |
業平1丁目 |
向島3丁目 |
|
| 京葉道路/清澄通り |
両国4丁目 |
緑2丁目 |
|
| 三ツ目通り |
緑1丁目 |
緑4丁目 |
|
| 三ツ目通り |
緑3丁目 |
江東橋3丁目 |
|
| 明治通り/丸八通り |
立花5丁目 |
立花2丁目 |
|
| 蔵前橋通り/清澄通り |
横網2丁目 |
石原3丁目 |
|
| |
東墨田3丁目 |
平井7丁目 |
|
| |
東駒形1丁目 |
東駒形1丁目 |
|
| 京葉道路 |
緑1丁目 |
緑3丁目 |
|
| 京葉道路/三ツ目通り |
緑3丁目 |
江東橋1丁目 |
|
| 京葉道路/清澄通り |
両国4丁目 |
緑2丁目 |
|
| 春日通り |
本所1丁目 |
本所1丁目 |
|
| 蔵前橋通り |
横網2丁目 |
横網2丁目 |
|
| |
文花1丁目 |
京島2丁目 |
|
| 明治通り |
文花3丁目 |
八広2丁目 |
|
| |
八広4丁目 |
八広4丁目 |
|
| |
八広6丁目 |
八広6丁目 |
|
| |
墨田2丁目 |
墨田2丁目 |
|
| |
押上2丁目 |
押上2丁目 |
|
| |
京島1丁目 |
京島1丁目 |
|
| 国道6号 |
東向島5丁目 |
墨田4丁目 |
|
| 三ツ目通り |
吾妻橋2丁目 |
向島1丁目 |
|
| 清澄通り/北斎通り |
両国4丁目 |
緑3丁目 |
|
| 国道6号 |
向島1丁目 |
向島5丁目 |
|
| 三ツ目通り |
立川2丁目 |
立川4丁目 |
|
| 三ツ目通り |
立川2丁目 |
立川4丁目 |
|
| 三ツ目通り |
吾妻橋2丁目 |
向島1丁目 |
|
| 明治通り |
南千住3丁目 |
東向島4丁目 |
|
| |
八広6丁目 |
八広6丁目 |
|
| |
八広6丁目 |
東隅田3丁目 |
|
| 三ツ目通り/浅草通り |
吾妻橋2丁目 |
業平1丁目 |
|
▲ページのトップに戻る