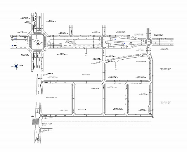
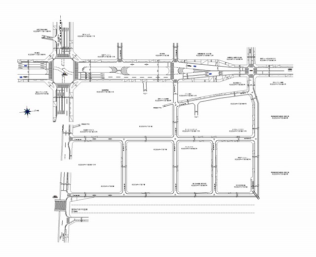
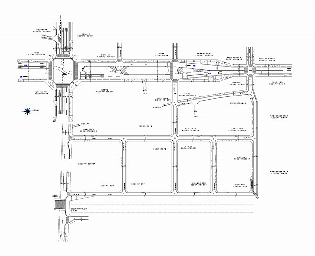
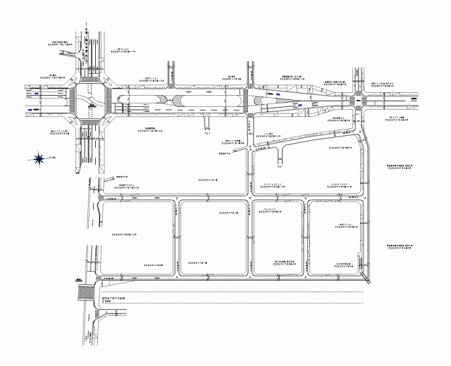
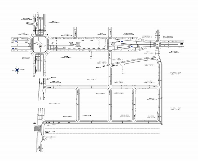
東京都 足立区実績のご案内。24条申請に必要な交通規制図、道路規制図作成はTPN。作業帯図作成から交通量調査、竣工図作成もお任せください。

東京都 足立区
| 本線名 |
左端 |
右端 |
規制図 |
| 尾久橋通り |
舎人2丁目 |
舎人2丁目 |
|
| 平和橋通り/日光街道 |
小梅1丁目 |
足立3丁目 |
|
| 平和橋通り |
足立2丁目 |
足立2丁目 |
|
| 環七通り |
鹿浜1丁目 |
鹿浜2丁目 |
|
| |
堀之内1丁目 |
堀之内1丁目 |
|
| |
加賀2丁目 |
加賀2丁目 |
|
| 平和橋通り/日光街道 |
梅田4丁目 |
足立3丁目 |
|
| 環七通り |
中央本町5丁目 |
竹の塚4丁目 |
|
| 尾久橋通り |
皿沼2丁目 |
入谷1丁目 |
|
| 環七通り |
谷中2丁目 |
東和5丁目 |
|
| 尾久橋通り |
舎人1丁目 |
舎人4丁目 |
|
| 国道4号 |
千住宮元町 |
千住寿町 |
|
| |
西新井7丁目 |
西新井6丁目 |
|
| 環七通り |
鹿浜2丁目 |
鹿浜3丁目 |
|
| 尾久橋通り/江北バス通り |
江北1丁目 |
江北5丁目 |
|
| 墨堤通り |
千住曙町 |
千住曙町 |
|
| 尾久橋通り(足立区〜埼玉県草加市) |
舎人5丁目 |
遊馬町 |
|
| 尾久橋通り |
江北4丁目 |
江北6丁目 |
|
| 環七通り |
鹿浜2丁目 |
鹿浜3丁目 |
|
| 尾久橋通り |
皿沼2丁目 |
入谷1丁目 |
|
| 尾久橋通り |
谷在家2丁目 |
谷在家1丁目 |
|
| 尾久橋通り |
入谷1丁目 |
舎人1丁目 |
|
| 旧日光街道 |
竹の塚2丁目 |
竹の塚3丁目 |
|
| 尾久橋通り |
舎人1丁目 |
舎人4丁目 |
|
| 尾久橋通り |
谷在家3丁目 |
皿沼3丁目 |
|
| 墨堤通り |
千住東1丁目 |
千住曙町 |
|
| 日光街道 |
梅田2丁目 |
梅田2丁目 |
|
| 墨堤通り |
千住橋戸町 |
千住大川町 |
|
| 墨堤通り |
千住橋戸町 |
千住大川町 |
|
| 環七通り/旧日光街道/日光街道 |
島根3丁目 |
平野1丁目 |
|
| 尾久橋通り |
扇2丁目 |
扇2丁目 |
|
| |
花畑6丁目 |
花畑7丁目 |
|
| 環七通り/旧日光街道 |
栗原1丁目 |
島根1丁目 |
|
| |
花畑6丁目 |
花畑2丁目 |
|
| 尾久橋通り |
扇2丁目 |
扇2丁目 |
|
| 尾久橋通り |
扇2丁目 |
扇2丁目 |
|
| 尾久橋通り |
扇2丁目 |
扇3丁目 |
|
| 尾久橋通り |
舎人公園 |
舎人1丁目 |
|
| |
花畑1丁目 |
南花畑5丁目 |
|
| |
綾瀬4丁目 |
東綾瀬2丁目 |
|
| |
綾瀬4丁目 |
綾瀬4丁目 |
|
| |
綾瀬4丁目 |
綾瀬4丁目 |
|
| |
綾瀬3丁目 |
東綾瀬1丁目 |
|
| |
小菅4丁目 |
東綾瀬3丁目 |
|
| |
足立1丁目 |
西綾瀬2丁目 |
|
| 環七通り |
青井5丁目 |
加平1丁目 |
|
| 国道4号 |
足立1丁目 |
梅田3丁目 |
|
| |
柳原2丁目 |
柳原1丁目 |
|
| |
綾瀬2丁目 |
綾瀬2丁目 |
|
| 尾竹橋通り |
関原2丁目 |
本木2丁目 |
|
| |
皿沼3丁目 |
西伊興2丁目 |
|
| 尾久橋通り |
江北4丁目 |
江北5丁目 |
|
| 尾久橋通り |
西新井本町2丁目 |
西新井本町2丁目 |
|
| |
加平2丁目 |
加平2丁目 |
|
| |
梅田1丁目 |
梅田1丁目 |
|
| |
扇1丁目 |
扇1丁目 |
|
| 尾久橋通り |
皿沼3丁目 |
入谷1丁目 |
|
| 尾久橋通り |
入谷1丁目 |
舎人4丁目 |
|
| 尾久橋通り |
扇2丁目 |
扇2丁目 |
|
| 尾久橋通り |
扇3丁目 |
江北5丁目 |
|
| |
鹿浜5丁目 |
鹿浜4丁目 |
|
| |
中央本町2丁目 |
中央本町2丁目 |
|
| |
梅島1丁目 |
梅島1丁目 |
|
| |
加平1丁目 |
加平3丁目 |
|
| |
谷中2丁目 |
谷中3丁目 |
|
| 国道4号 |
千住宮元町 |
千住旭町 |
|
| |
六町4丁目 |
六町4丁目 |
|
| 尾久橋通り |
谷在家1丁目 |
皿沼3丁目 |
|
| 墨堤通り |
千住宮元町 |
千住東1丁目 |
|
| |
千住2丁目 |
千住5丁目 |
|
| 墨堤通り |
千住橋戸町 |
千住大川町 |
|
| 尾久橋通り |
西新井1丁目 |
谷在家1丁目 |
|
| 尾久橋通り |
谷在家3丁目 |
皿沼3丁目 |
|
| 尾久橋通り |
扇1丁目 |
扇2丁目 |
|
| 尾久橋通り |
入谷1丁目 |
入谷1丁目 |
|
| 尾久橋通り |
扇1丁目 |
扇3丁目 |
|
| 墨堤通り |
千住桜木1丁目 |
千住桜木1丁目 |
|
| |
江北2丁目 |
江北2丁目 |
|
| 尾竹橋通り |
東伊興3丁目 |
東伊興3丁目 |
|
| 環七通り/旧日光街道 |
梅島3丁目 |
梅島2丁目 |
|
| |
綾瀬3丁目 |
東綾瀬1丁目 |
|
| 国道4号 |
保木間1丁目 |
竹の塚4丁目 |
|
| 環七通り |
中川5丁目 |
中川4丁目 |
|
| |
佐野1丁目 |
佐野1丁目 |
|
| 尾久橋通り |
舎人町 |
舎人1丁目 |
|
| |
鹿浜5丁目 |
加賀2丁目 |
|
▲ページのトップに戻る