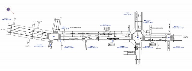
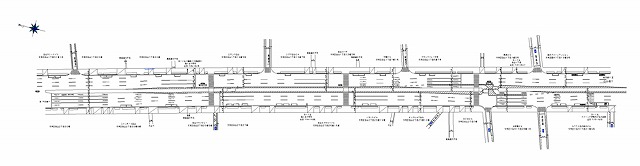
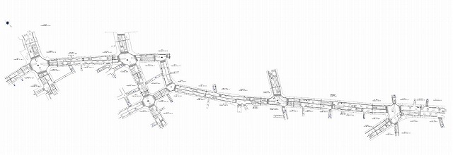
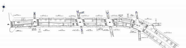
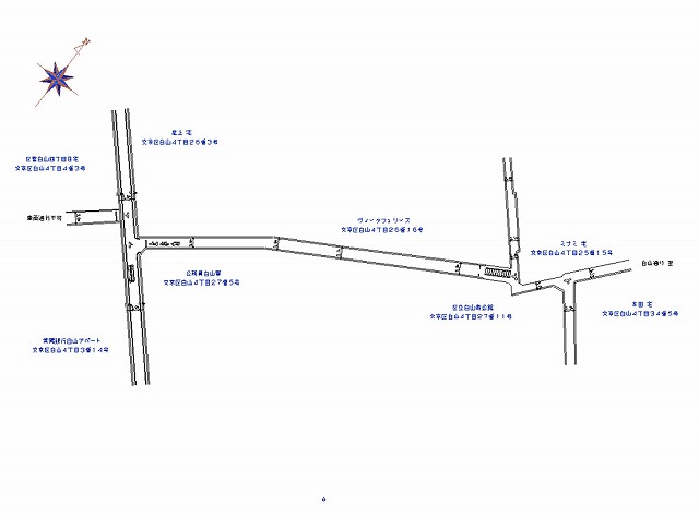
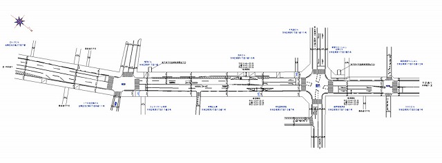
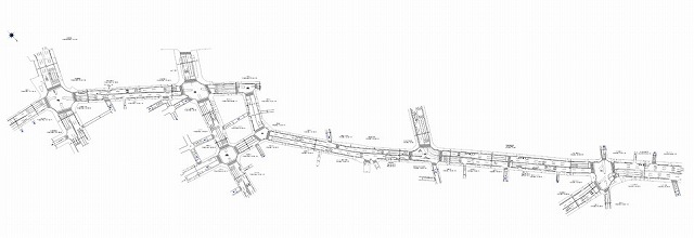
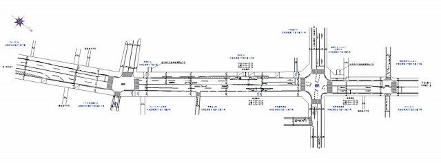
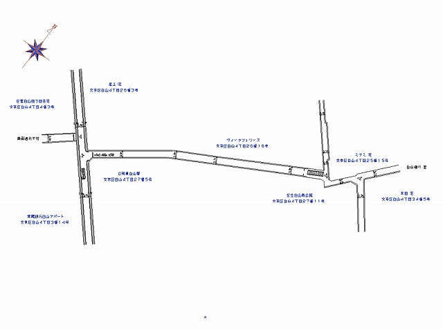
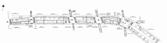
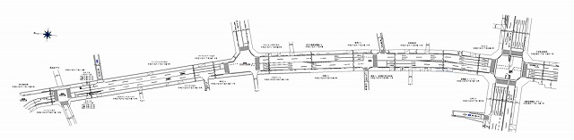
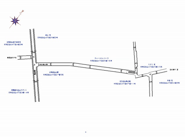
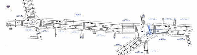
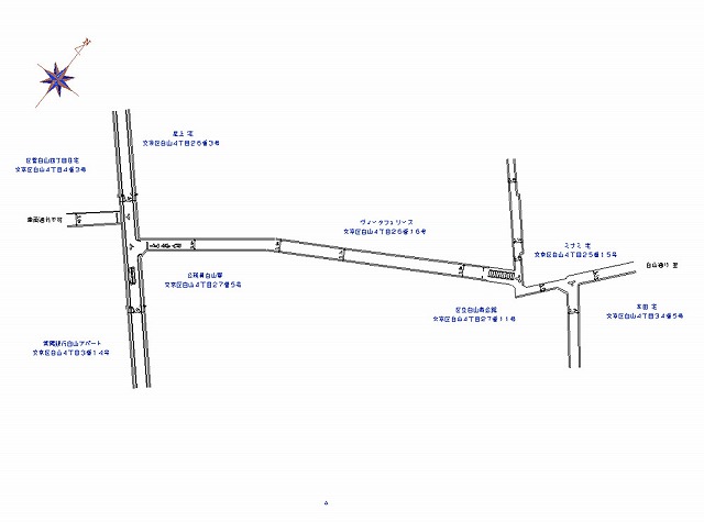
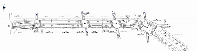
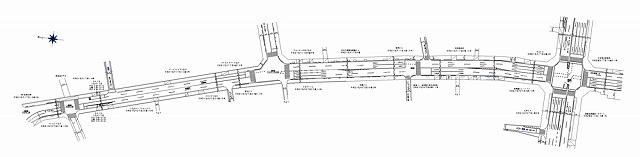
東京都 文京区実績のご案内。24条申請に必要な交通規制図、道路規制図作成はTPN。作業帯図作成から交通量調査、竣工図作成もお任せください。

東京都 文京区
| 本線名 |
左端 |
右端 |
規制図 |
| 外堀通り |
本郷1丁目 |
湯島1丁目 |
|
| 本郷通り/蔵前橋通り |
湯島1丁目 |
本郷3丁目 |
|
| 中央通り/外堀通り/本郷通り/蔵前橋通り |
外神田1丁目 |
本郷3丁目 |
|
| 春日通り |
本郷4丁目 |
本郷4丁目 |
|
| 不忍通り |
大塚5丁目 |
目白台2丁目 |
|
| |
千駄木2丁目 |
本駒込4丁目 |
|
| 国道254号 |
小石川5丁目 |
大塚4丁目 |
|
| 不忍通り/言問通り |
池之端2丁目 |
根津1丁目 |
|
| 本郷通り/中央通り/外堀通り/蔵前橋通り |
外神田1丁目 |
本郷3丁目 |
|
| 春日通り/安藤坂 |
小石川2丁目 |
小日向5丁目 |
|
| 目白通り |
関口1丁目 |
早稲田鶴巻町 |
|
| |
小石川1丁目 |
白山2丁目 |
|
| 不忍通り |
千駄木3丁目 |
本駒込4丁目 |
|
| 江戸川橋通り/目白通り/新目白通り |
音羽1丁目 |
関口1丁目 |
|
| |
目白台2丁目 |
東池袋5丁目 |
|
| 国道17号 |
湯島1丁目 |
本郷2丁目 |
|
| 新目白通り |
早稲田弦巻町 |
関口1丁目 |
|
| |
春日1丁目 |
小石川1丁目 |
|
| 旧白山通り/不忍通り |
白山1丁目 |
本駒込6丁目 |
|
| |
白山2丁目 |
白山3丁目 |
|
| |
小石川1丁目 |
白山3丁目 |
|
| 白山通り |
白山5丁目 |
本郷1丁目 |
|
| 不忍通り |
大塚5丁目 |
千石3丁目 |
|
| 本郷通り |
湯島1丁目 |
湯島1丁目 |
|
| 春日通り |
後楽2丁目 |
本郷1丁目 |
|
| 不忍通り |
大塚4丁目 |
大塚3丁目 |
|
| |
白山4丁目 |
白山4丁目 |
|
| |
西片1丁目 |
本郷6丁目 |
|
| 春日通り |
春日1丁目 |
小石川1丁目 |
|
| 本郷通り |
本駒込5丁目 |
駒込区1丁目 |
|
| 不忍通り/言問通り |
池之端2丁目 |
根津1丁目 |
|
| 外堀通り |
本郷2丁目 |
湯島1丁目 |
|
| 本郷通り/不忍通り |
本駒込5丁目 |
駒込1丁目 |
|
| |
春日1丁目 |
後楽2丁目 |
|
| |
後楽2丁目 |
後楽2丁目 |
|
| |
後楽2丁目 |
後楽2丁目 |
|
| 春日通り |
春日2丁目 |
大塚1丁目 |
|
| 春日通り/不忍通り |
春日3丁目 |
大塚5丁目 |
|
| 白山通り |
本郷4丁目 |
本郷1丁目 |
|
| 不忍通り |
大塚5丁目 |
大塚3丁目 |
|
| 旧白山通り |
白山5丁目 |
本駒込2丁目 |
|
| 白山通り/新壱岐坂 |
本郷2丁目 |
春日1丁目 |
|
| |
大塚5丁目 |
東池袋5丁目 |
|
| |
小日向1丁目 |
春日2丁目 |
|
| 春日通り/不忍通り |
小石川5丁目 |
南大塚2丁目 |
|
| 本郷通り |
本駒込3丁目 |
向丘2丁目 |
|
| |
小石川1丁目 |
本郷5丁目 |
|
| |
小石川1丁目 |
春日1丁目 |
|
| 白山通り |
白山1丁目 |
小石川1丁目 |
|
| 目白通り |
雑司が谷2丁目 |
関口3丁目 |
|
| 不忍通り |
大塚4丁目 |
千石3丁目 |
|
| 新目白通り |
早稲田鶴巻町 |
関口1丁目 |
|
| 目白通り |
関口3丁目 |
目白台1丁目 |
|
| 目白通り |
関口3丁目 |
関口3丁目 |
|
▲ページのトップに戻る