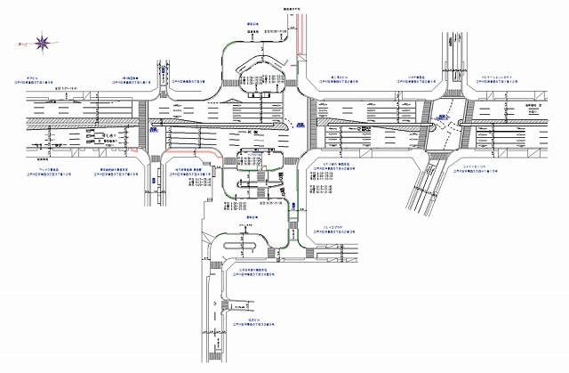
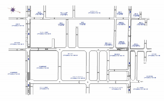
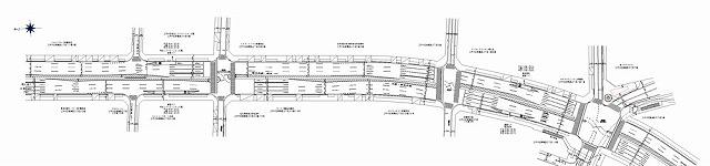
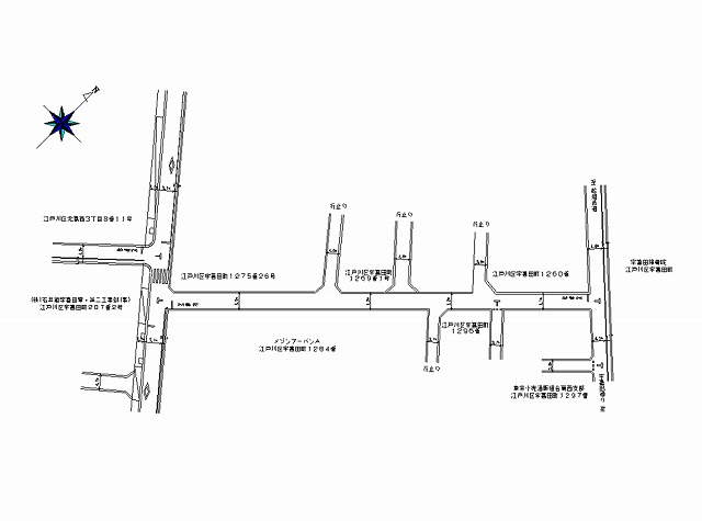
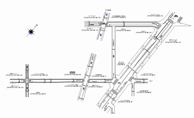
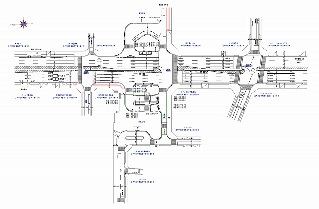
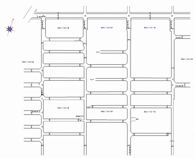
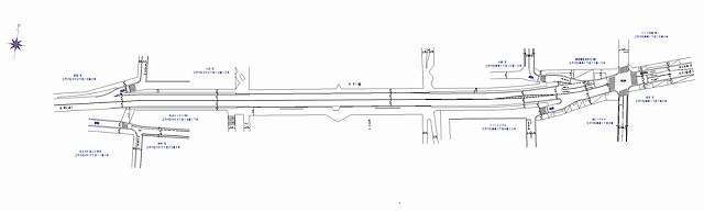
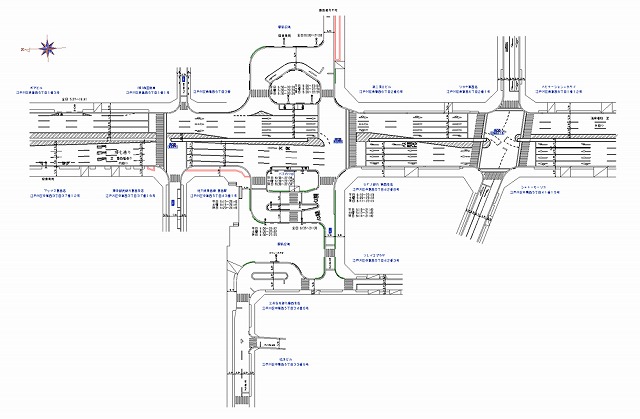
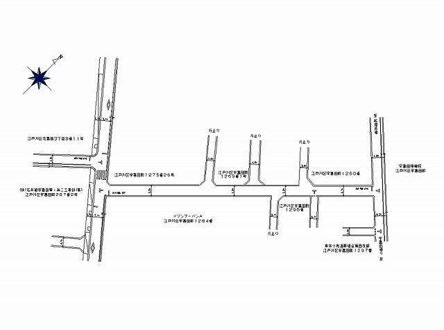
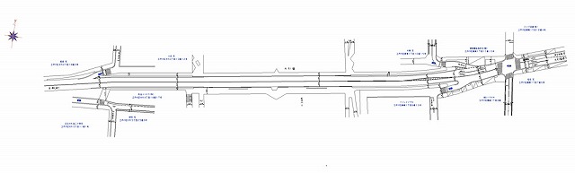
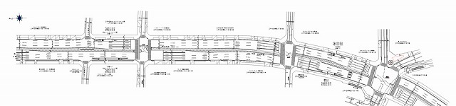
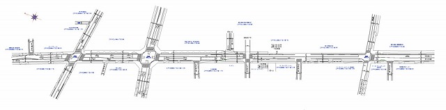
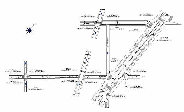
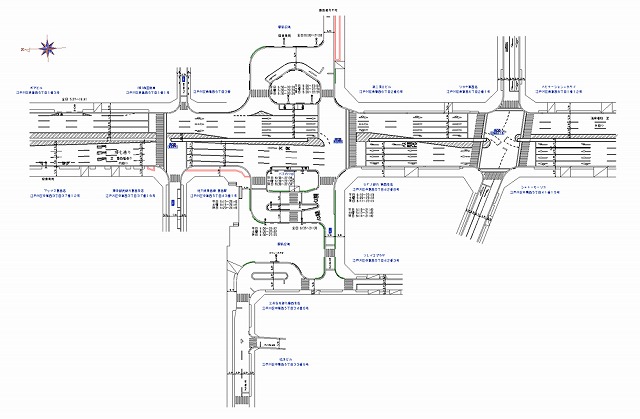
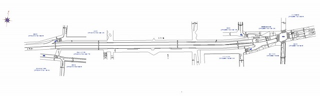
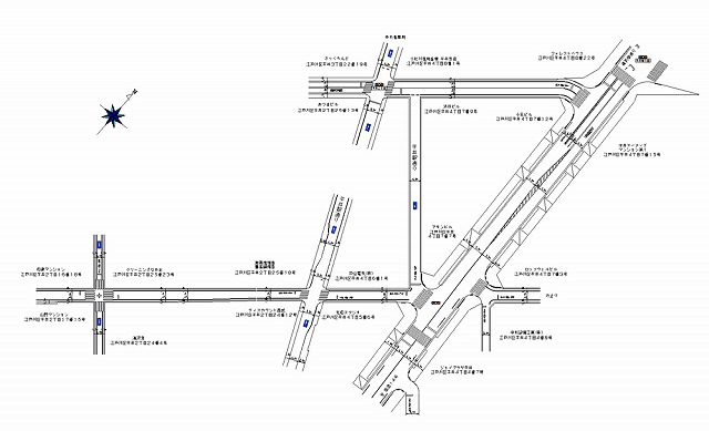
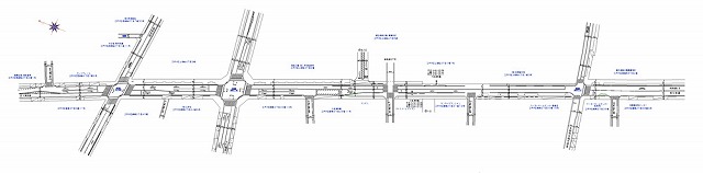
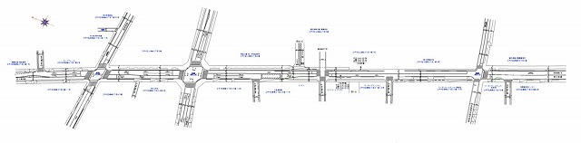
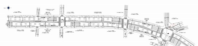
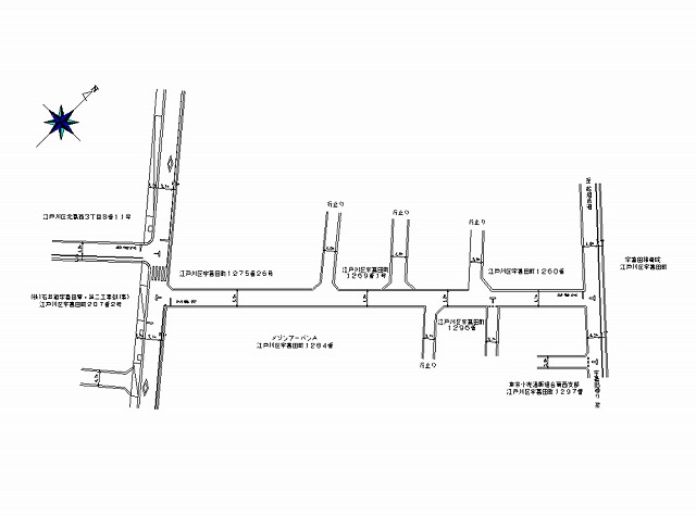
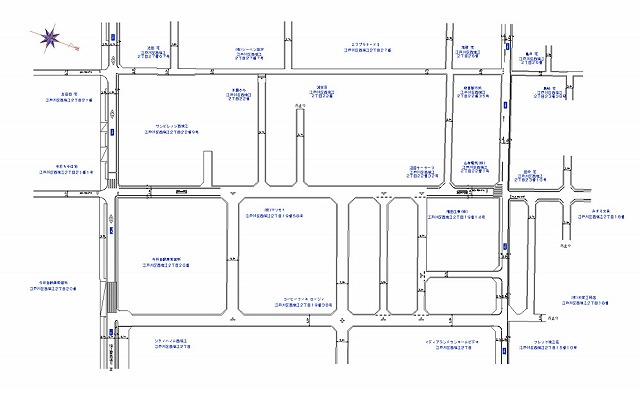
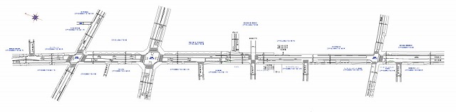
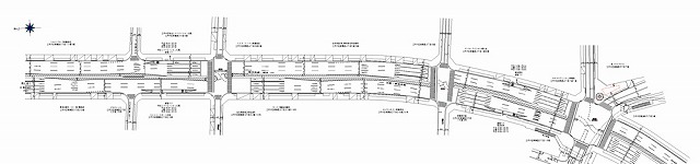
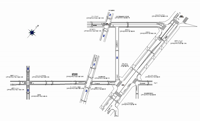
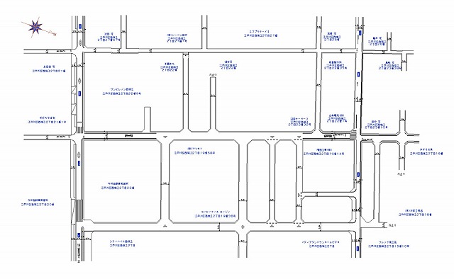
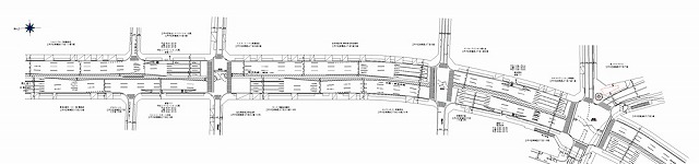
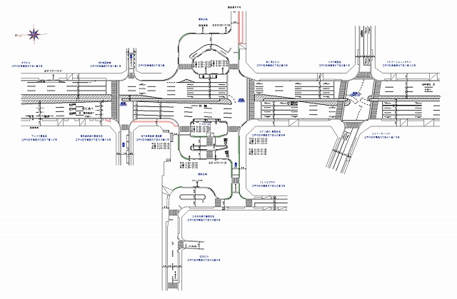
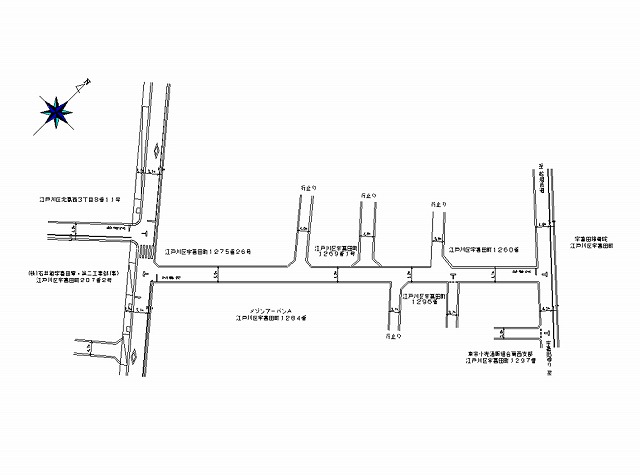
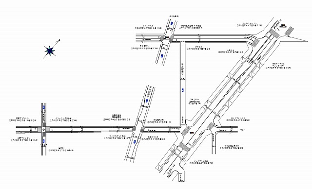
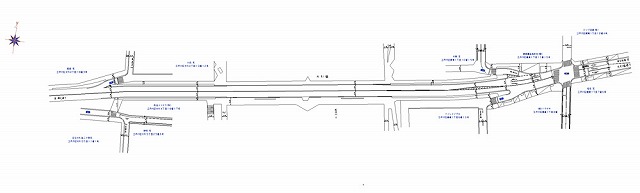
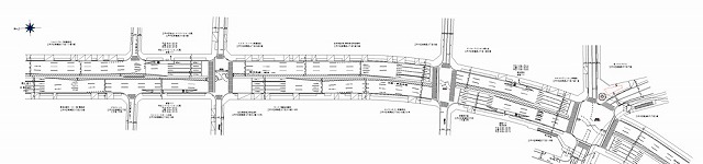
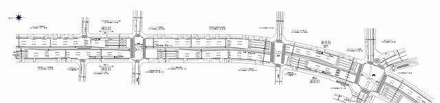
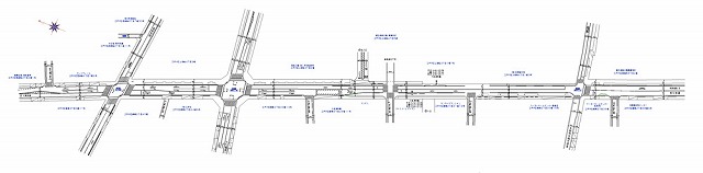
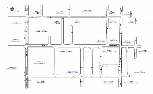
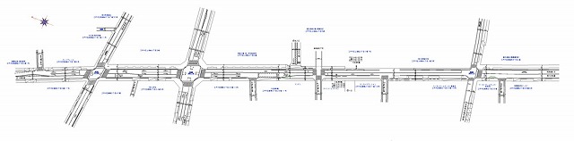
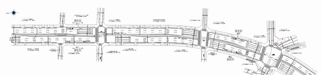
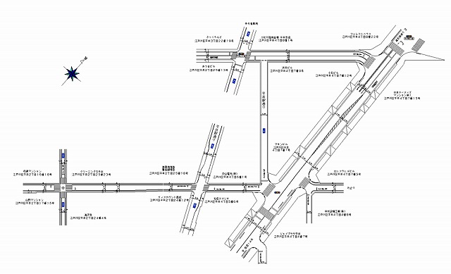
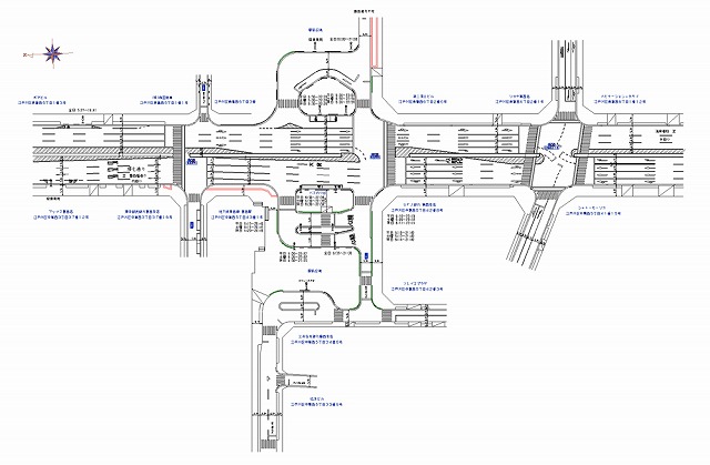
東京都 江戸川区実績のご案内。24条申請に必要な交通規制図、道路規制図作成はTPN。作業帯図作成から交通量調査、竣工図作成もお任せください。

東京都 江戸川区
| 本線名 |
左端 |
右端 |
規制図 |
| 環七通り |
興宮町 |
松本2丁目 |
|
| 環七通り |
松本2丁目 |
大杉5丁目 |
|
| 船堀街道/左近通り |
臨海町1丁目 |
臨海町1丁目 |
|
| |
鹿骨1丁目 |
鹿骨1丁目 |
|
| |
鹿骨1丁目 |
新堀1丁目 |
|
| 柴又街道 |
鹿骨3丁目 |
北篠崎2丁目 |
|
| 大杉橋通り |
大杉4丁目 |
鹿骨1丁目 |
|
| 環七通り |
一之江5丁目 |
一之江1丁目 |
|
| 葛西橋通り/船堀街道/新田仲町通り |
西葛西1丁目 |
北葛西4丁目 |
|
| 環七通り |
南葛西3丁目 |
臨海町3丁目 |
|
| 環七通り |
大杉3丁目 |
一之江1丁目 |
|
| 環七通り |
興宮町 |
大杉4丁目 |
|
| 千葉街道 |
南小岩8丁目 |
東小岩5丁目 |
|
| 千葉街道/京葉道路/船堀街道/平和橋通り |
東小松川1丁目 |
中央4丁目 |
|
| 千葉街道 |
本一色2丁目 |
南小岩4丁目 |
|
| 千葉街道 |
南小岩3丁目 |
東小岩4丁目 |
|
| 国道14号 |
小松川4丁目 |
松島1丁目 |
|
| 環七通り/新大橋通り |
春江町4丁目 |
西瑞江5丁目 |
|
| 国道14号 |
小松川3丁目 |
小松川3丁目 |
|
| 環七通り |
興宮町 |
松本2丁目 |
|
| 環七通り |
松本2丁目 |
大杉4丁目 |
|
| 環七通り |
大杉3丁目 |
大杉3丁目 |
|
| 環七通り/京葉道路 |
一之江1丁目 |
一之江1丁目 |
|
| 千葉街道/篠崎街道/蔵前橋通り |
東小岩5丁目 |
北小岩3丁目 |
|
| |
西葛西6丁目 |
中葛西5丁目 |
|
| /蔵前橋通り |
平井6丁目 |
平井5丁目 |
|
| |
北葛西1丁目 |
船堀2丁目 |
|
| 銀杏並木通り/新大橋通り |
船堀4丁目 |
松江4丁目 |
|
| 銀杏並木通り/松江大通り |
松江4丁目 |
松江4丁目 |
|
| 左近通り/環七通り |
南葛西1丁目 |
南葛西2丁目 |
|
| |
西瑞江1丁目 |
西瑞江1丁目 |
|
| |
上篠崎1丁目 |
上篠崎2丁目 |
|
| |
上篠崎3丁目 |
上篠崎2丁目 |
|
| |
春江町3丁目 |
瑞江1丁目 |
|
| |
一之江7丁目 |
一之江7丁目 |
|
| |
西瑞江2丁目 |
西瑞江2丁目 |
|
| |
瑞江2丁目 |
下鎌田町 |
|
| 南葛西通り |
臨海町6丁目 |
南葛西6丁目 |
|
| 千葉街道/京葉道路/平和橋通り |
東小松川1丁目 |
松島2丁目 |
|
| 葛西中央通り |
臨海町3丁目 |
中葛西7丁目 |
|
| |
中央4丁目 |
中央3丁目 |
|
| |
松本1丁目 |
松本1丁目 |
|
| |
木場1丁目 |
木場2丁目 |
|
| |
松島4丁目 |
松島4丁目 |
|
| |
一之江3丁目 |
一之江3丁目 |
|
| 環七通り |
東葛西2丁目 |
東葛西6丁目 |
|
| 環七通り |
江戸川6丁目 |
一之江8丁目 |
|
| 環七通り |
中葛西5丁目 |
南葛西3丁目 |
|
| 篠崎街道 |
東小岩3丁目 |
北篠崎1丁目 |
|
| 篠崎街道 |
上篠崎1丁目 |
上篠崎2丁目 |
|
| |
西葛西1丁目 |
北葛西4丁目 |
|
| |
北葛西1丁目 |
北葛西1丁目 |
|
| |
西瑞江町1丁目 |
瑞江2丁目 |
|
| |
西瑞江町1丁目 |
瑞江2丁目 |
|
| |
春江町3丁目 |
瑞江町3丁目 |
|
| |
春江町3丁目 |
西瑞江2丁目 |
|
| |
下鎌田町 |
南篠崎町4丁目 |
|
| 船堀街道/京葉道路 |
中央1丁目 |
松枝1丁目 |
|
| 船堀街道 |
松枝1丁目 |
松枝3丁目 |
|
| 新大橋通り/船堀街道 |
東小松川4丁目 |
松江5丁目 |
|
| |
西瑞江1丁目 |
西瑞江1丁目 |
|
| 環七通り |
一之江1丁目 |
一之江2丁目 |
|
| 環七通り |
東葛西6丁目 |
東葛西8丁目 |
|
| |
西瑞江2丁目 |
西瑞江2丁目 |
|
| |
西瑞江2丁目 |
西瑞江2丁目 |
|
| |
西瑞江1丁目 |
西瑞江1丁目 |
|
| 左近通り |
東葛西8丁目 |
南葛西4丁目 |
|
| 柴又街道 |
上篠崎4丁目 |
鹿骨2丁目 |
|
| 柴又街道/大杉橋通り/鹿骨街道 |
西篠崎2丁目 |
西篠崎8丁目 |
|
| 環七通り |
東葛西6丁目 |
南葛西2丁目 |
|
| |
篠崎町7丁目 |
上篠崎4丁目 |
|
| |
篠崎町7丁目 |
篠崎町7丁目 |
|
| |
篠崎町7丁目 |
篠崎町7丁目 |
|
| |
東瑞江2丁目 |
東瑞江2丁目 |
|
| 鹿骨街道/篠崎街道 |
篠崎町1丁目 |
篠崎町1丁目 |
|
| 環七通り |
中葛西5丁目 |
南葛西1丁目 |
|
| |
篠崎2丁目 |
篠崎3丁目 |
|
| |
篠崎町6丁目 |
南篠崎町1丁目 |
|
| 環七通り |
一之江3丁目 |
西瑞江5丁目 |
|
| |
西小岩1丁目 |
西小岩3丁目 |
|
| |
西瑞江2丁目 |
西瑞江2丁目 |
|
| |
東瑞江2丁目 |
東瑞江2丁目 |
|
| 国道14号 |
大杉2丁目 |
一之江1丁目 |
|
| |
東瑞江2丁目 |
東瑞江2丁目 |
|
| |
西瑞江2丁目 |
西瑞江2丁目 |
|
| 新大橋通り |
春江4丁目 |
春江4丁目 |
|
| 葛西橋通り |
西葛西2丁目 |
西葛西1丁目 |
|
| 新大橋通り |
東小松川4丁目 |
松江5丁目 |
|
| |
小松川1丁目 |
小松川1丁目 |
|
| 環七通り/葛西橋通り |
東葛西2丁目 |
東葛西5丁目 |
|
| 柴又街道/鹿骨街道 |
西篠崎2丁目 |
上篠崎4丁目 |
|
| 柴又街道/鹿骨街道/大杉橋通り |
西篠崎2丁目 |
上篠崎4丁目 |
|
| |
松島2丁目 |
松島2丁目 |
|
| 平和橋通り |
松島3丁目 |
松島3丁目 |
|
| |
大杉5丁目 |
大杉5丁目 |
|
| |
平井7丁目 |
平井6丁目 |
|
| 船堀街道/葛西橋通り |
西葛西1丁目 |
清新町1丁目 |
|
| 葛西橋通り/船堀街道/新田仲町通り |
西葛西1丁目 |
北葛西4丁目 |
|
| 国道14号 |
中央3丁目 |
中央1丁目 |
|
| |
平井7丁目 |
平井6丁目 |
|
| 柴又街道 |
西篠崎2丁目 |
谷河内2丁目 |
|
| |
小松川1丁目 |
小松川1丁目 |
|
| |
南葛西8丁目 |
南葛西9丁目 |
|
| 放射第16号線/船堀街道 |
清新町1丁目 |
西葛西7丁目 |
|
| 放射第16号線/船堀街道 |
清新町1丁目 |
西葛西7丁目 |
|
| 五分一通り/千葉街道 |
松島2丁目 |
中央4丁目 |
|
| |
西葛西2丁目 |
西葛西2丁目 |
|
| 新大橋通り |
東小松川4丁目 |
東小松川4丁目 |
|
| 環七通り |
東葛西5丁目 |
東葛西6丁目 |
|
| |
平井4丁目 |
平井4丁目 |
|
| |
平井4丁目 |
平井4丁目 |
|
| 逆井庚申塚通り |
平井4丁目 |
平井1丁目 |
|
| |
平井2丁目 |
平井4丁目 |
|
| |
本一色1丁目 |
本一色1丁目 |
|
| |
東瑞江3丁目 |
東瑞江1丁目 |
|
| |
松本1丁目 |
松本1丁目 |
|
| |
大杉5丁目 |
大杉5丁目 |
|
| |
中央3丁目 |
本一色2丁目 |
|
| |
新小岩3丁目 |
本一色1丁目 |
|
| |
本一色2丁目 |
本一色1丁目 |
|
| |
北小岩8丁目 |
北小岩8丁目 |
|
| |
北小岩8丁目 |
北小岩8丁目 |
|
| |
北小岩8丁目 |
北小岩8丁目 |
|
| |
北小岩6丁目 |
北小岩6丁目 |
|
| |
北小岩8丁目 |
北小岩6丁目 |
|
| |
北小岩6丁目 |
北小岩6丁目 |
|
| |
北小岩6丁目 |
北小岩6丁目 |
|
| |
北小岩6丁目 |
北小岩7丁目 |
|
| 船堀街道 |
小松川1丁目 |
東小松川4丁目 |
|
| |
新砂3丁目 |
東砂8丁目 |
|
| 国道14号 |
平井1丁目 |
平井2丁目 |
|
| 国道14号 |
平井2丁目 |
平井4丁目 |
|
| 京葉道路/環七通り |
西一之江2丁目 |
大杉3丁目 |
|
| 五分一通り |
松島2丁目 |
松島2丁目 |
|
| |
江戸川1丁目 |
南篠崎町1丁目 |
|
| |
北葛西3丁目 |
宇喜田町 |
|
| |
北葛西5丁目 |
北葛西5丁目 |
|
| |
春江町3丁目 |
春江町3丁目 |
|
| |
船堀2丁目 |
船堀2丁目 |
|
| |
東葛西5丁目 |
東葛西5丁目 |
|
▲ページのトップに戻る