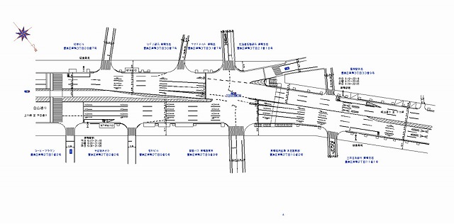
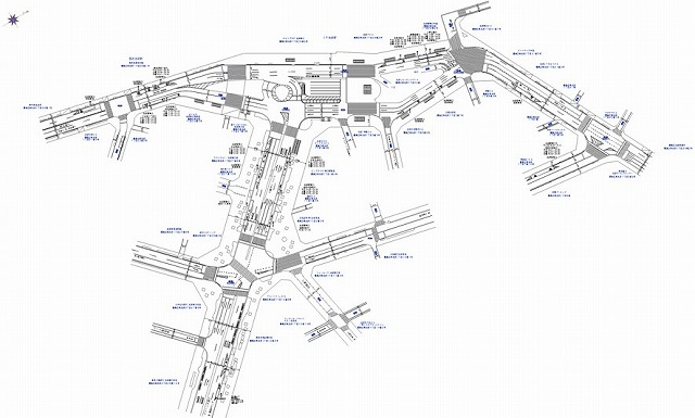
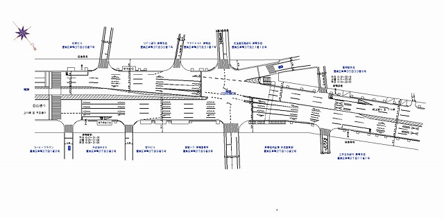
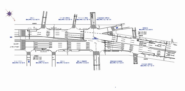
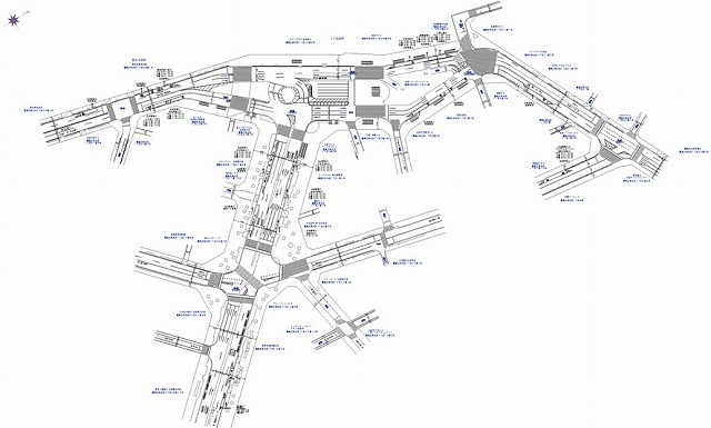
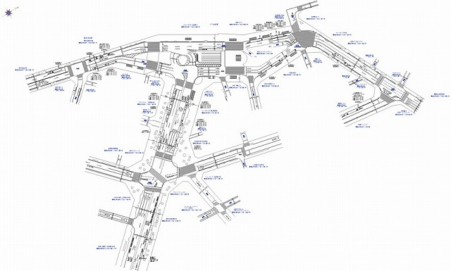
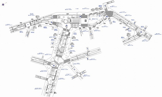
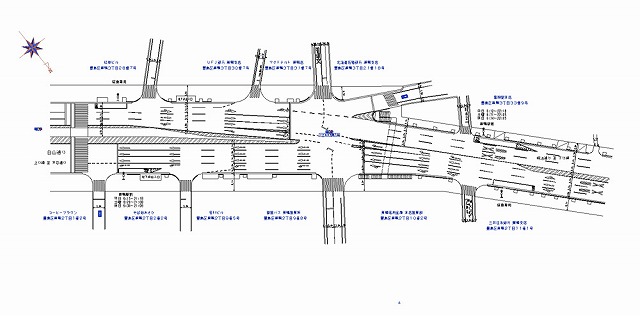
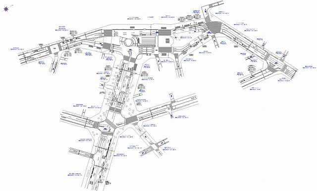
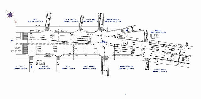
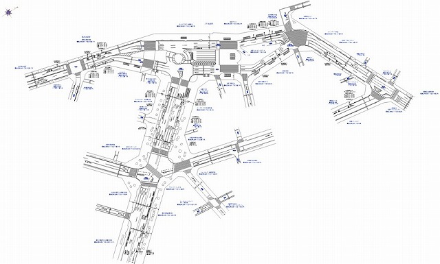
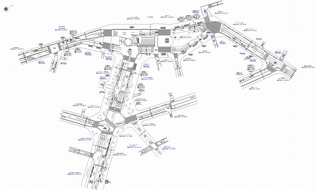
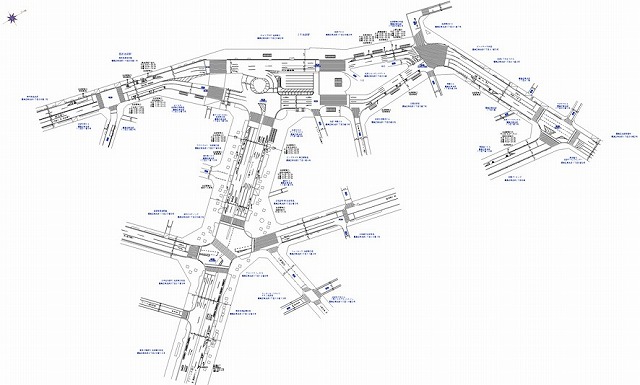
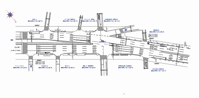
東京都 豊島区実績のご案内。24条申請に必要な交通規制図、道路規制図作成はTPN。作業帯図作成から交通量調査、竣工図作成もお任せください。

東京都 豊島区
| 本線名 |
左端 |
右端 |
規制図 |
| 白山通り/明治通り |
西巣鴨3丁目 |
滝野川5丁目 |
|
| 明治通り/東栄会本町通り/グリーン大通り |
南池袋1丁目 |
東池袋1丁目 |
|
| |
南大塚1丁目 |
南大塚1丁目 |
|
| |
本駒込6丁目 |
巣鴨2丁目 |
|
| 国道254号 |
南大塚2丁目 |
東池袋4丁目 |
|
| 白山通り |
巣鴨5丁目 |
西巣鴨3丁目 |
|
| 国道254号 |
東池袋2丁目 |
東池袋1丁目 |
|
| 国道17号 |
西巣鴨3丁目 |
滝野川5丁目 |
|
| 山手通り |
中落合2丁目 |
目白5丁目 |
|
| |
西池袋3丁目 |
西池袋1丁目 |
|
| 山手通り |
要町1丁目 |
南町 |
|
| 新目白通り |
高田3丁目 |
下落合2丁目 |
|
| 白山通り |
巣鴨3丁目 |
巣鴨3丁目 |
|
| 明治通り/グリーン大通り |
南池袋1丁目 |
東池袋1丁目 |
|
| 環七通り |
豊玉中3丁目 |
丸山2丁目 |
|
| 千川通り/千川通り |
南長崎6丁目 |
旭丘1丁目 |
|
| 白山通り |
巣鴨4丁目 |
巣鴨4丁目 |
|
| 春日通り |
東池袋2丁目 |
東池袋1丁目 |
|
| |
音羽2丁目 |
南池袋4丁目 |
|
| 環七通り |
池袋1丁目 |
中丸町 |
|
| |
目白1丁目 |
目白2丁目 |
|
| 明治通り/滝野川桜通り/白山通り |
池袋1丁目 |
西巣鴨4丁目 |
|
| 折戸通り |
西巣鴨1丁目 |
北大塚1丁目 |
|
| |
池袋2丁目 |
池袋3丁目 |
|
| |
東池袋4丁目 |
東池袋2丁目 |
|
| 国道17号 |
千石4丁目 |
巣鴨2丁目 |
|
| 明治通り |
南池袋1丁目 |
東池袋1丁目 |
|
| |
池袋本町3丁目 |
板橋2丁目 |
|
▲ページのトップに戻る