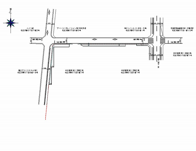
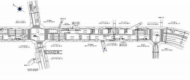
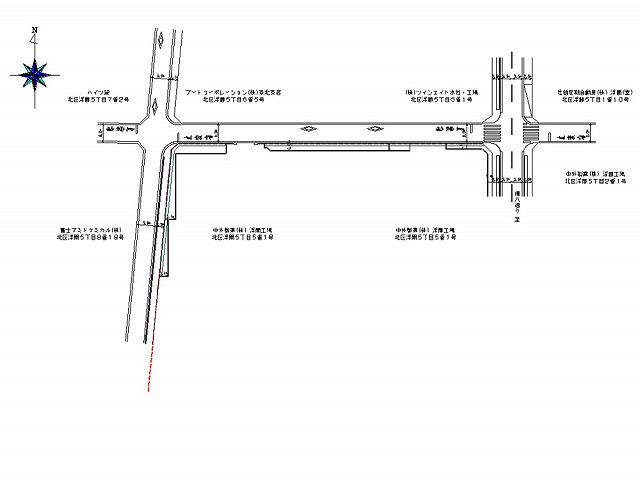
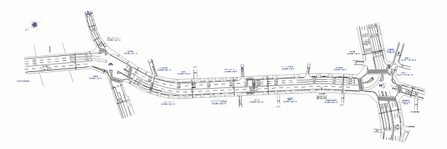
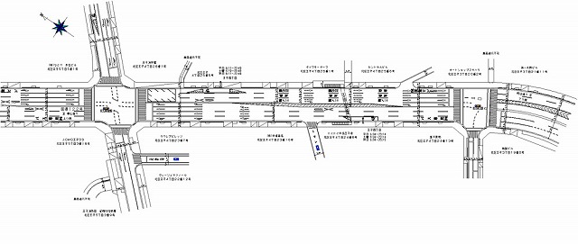
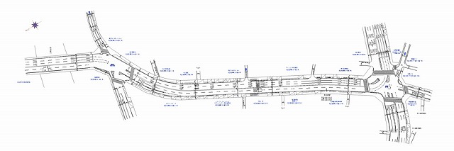
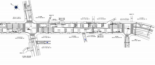
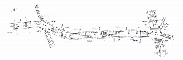
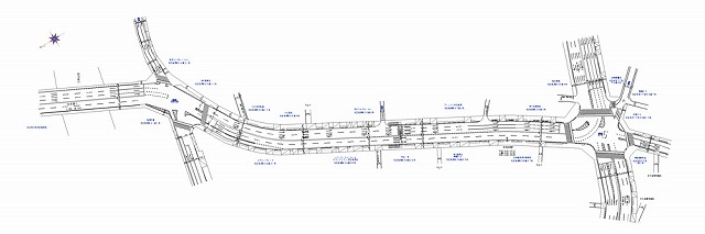
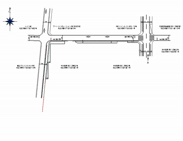
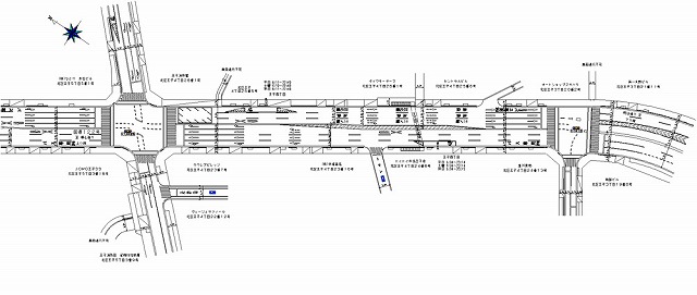
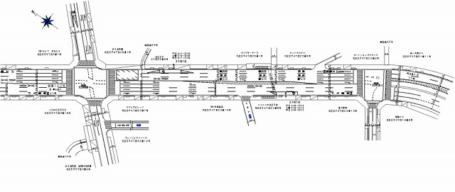
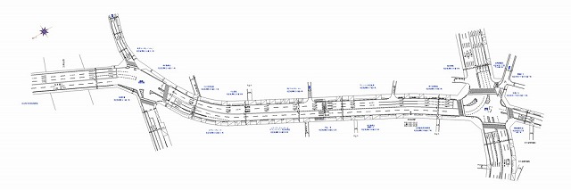
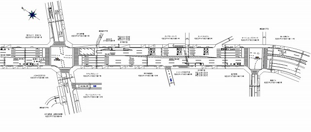
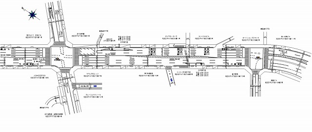
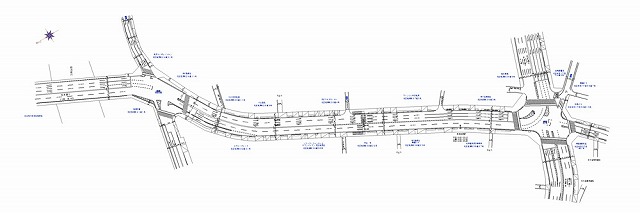
東京都 北区実績のご案内。24条申請に必要な交通規制図、道路規制図作成はTPN。作業帯図作成から交通量調査、竣工図作成もお任せください。

東京都 北区
| 本線名 |
左端 |
右端 |
規制図 |
| |
王子2丁目 |
王子3丁目 |
|
| 国道122号 |
王子5丁目 |
王子3丁目 |
|
| |
浮間1丁目 |
浮間1丁目 |
|
| |
蓮沼町 |
赤羽6丁目 |
|
| |
赤羽西1丁目 |
赤羽西1丁目 |
|
| |
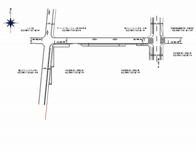
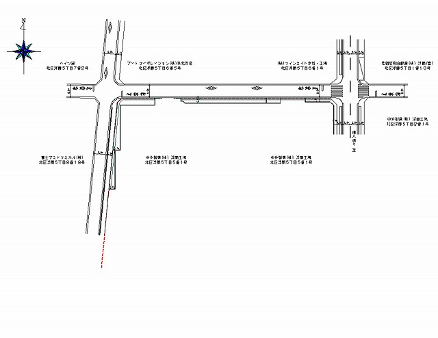
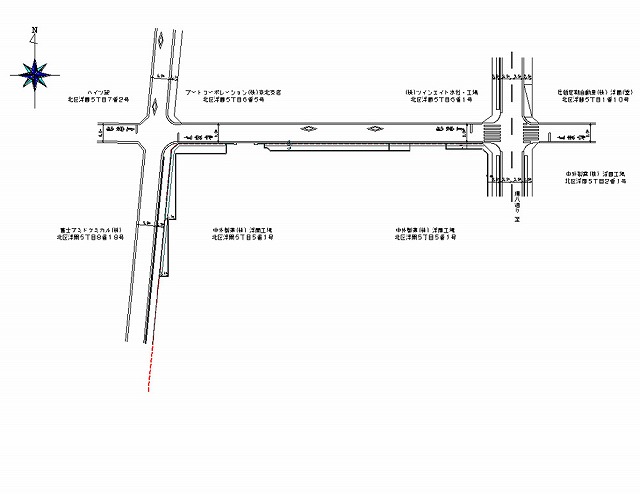
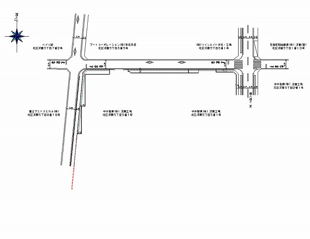
浮間5丁目 |
浮間5丁目 |
|
| |
桐ヶ丘2丁目 |
赤羽台1丁目 |
|
| 福寿通り |
小豆沢1丁目 |
赤羽西5丁目 |
|
| 明治通り/尾久橋通り |
田端新町2丁目 |
西日暮里6丁目 |
|
| 本町通り/明治通り |
王子1丁目 |
王子本町2丁目 |
|
| |
桐ヶ丘1丁目 |
赤羽台3丁目 |
|
| |
赤羽台3丁目 |
赤羽台3丁目 |
|
| 環七通り |
中十条3丁目 |
中十条4丁目 |
|
| 北本通り/環八通り |
赤羽2丁目 |
赤羽3丁目 |
|
| 北本通り/環八通り |
岩淵町 |
赤羽1丁目 |
|
| 環七通り |
東十条4丁目 |
神谷1丁目 |
|
| 北本通り |
王子2丁目 |
王子3丁目 |
|
| |
岸町2丁目 |
上十条1丁目 |
|
| |
東十条4丁目 |
東十条5丁目 |
|
| |
赤羽南2丁目 |
東十条6丁目 |
|
| 本町通り |
王子本町1丁目 |
中十条1丁目 |
|
| 北本通り/環八通り |
北淵町 |
赤羽3丁目 |
|
| 明治通り |
田端新町2丁目 |
田端新町2丁目 |
|
| 北本通り |
王子1丁目 |
王子3丁目 |
|
| |
上十条5丁目 |
十条仲原2丁目 |
|
| |
赤羽西2丁目 |
赤羽西2丁目 |
|
| 明治通り/尾久橋通り |
東田端1丁目 |
東尾久1丁目 |
|
| 明治通り |
西巣鴨4丁目 |
滝野川5丁目 |
|
| 北本通り/環八通り |
赤羽2丁目 |
赤羽3丁目 |
|
▲ページのトップに戻る