
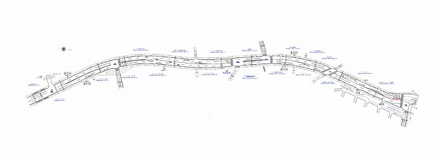
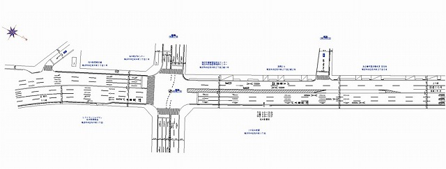
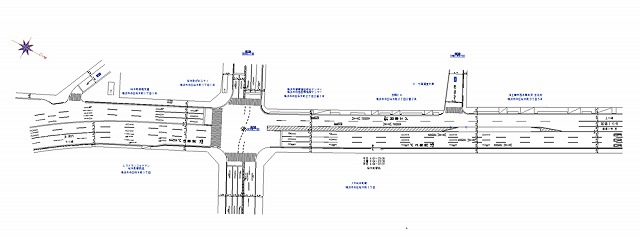
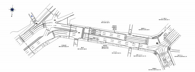
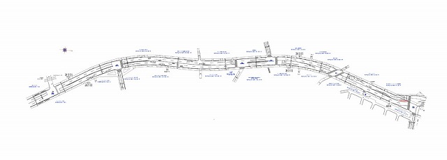
| 本線名 | 左端 | 右端 | 規制図 |
|---|---|---|---|
| 国道1号(神奈川区) | 栄町 | 高島2丁目 | |
| 国道1号(神奈川区〜西区) | 高島2丁目 | 高島1丁目 | |
| 国道1号(神奈川区〜西区) | 高島2丁目 | 高島2丁目 | |
| ― (西区) | 高島2丁目 | 戸部本町 | |
| ― (西区) | 戸部町 | 戸部本町 | |
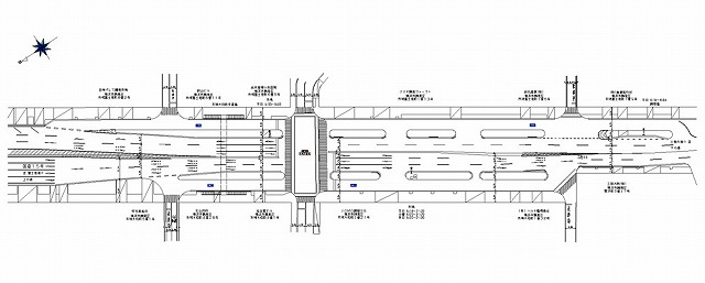
| 国道1号(西区) | 戸部本町 | 中央 | |
| ― (瀬谷区) | 瀬谷町 | 北町 | |
| 国道1号(西区) | 戸部本町 | 浜松町 | |
| 国道16号(保土ヶ谷区) | 上星川2丁目 | 上星川2丁目 | |
| 本町通り/日本大通り(中区) | 山下町 | 日本大通 | |
| ― (鶴見区) | 鶴見中央4丁目 | 生麦4丁目 | |
| 中原街道(旭区) | 今宿西町 | 都岡町 | |
| 国道246号(青葉区) | 市ヶ尾 | 下谷本町 | |
| 国道15号(神奈川区) | 子安通1丁目 | 浦島朝 | |
| 国道15号(神奈川区) | 栄町 | 栄町 | |
| 国道1号(西区) | 戸部本町 | 中央1丁目 | |
| 国道15号(神奈川区) | 青木町 | 青木町 | |
| 国道1号(神奈川区) | 大口通 | 浦島丘 | |
| 国道1号(鶴見区〜神奈川区) | 東寺尾4丁目 | 子安台1丁目 | |
| 国道15号(鶴見区) | 鶴見中央3丁目 | 鶴見中央4丁目 | |
| 国道1号(西区) | 中央2丁目 | 浜松町 | |
| 国道246号(宮前区〜都筑区) | 有馬9丁目 | あゆみが丘 | |
| 国道246号(都筑区〜青葉区) | あゆみが丘 | 荏田町 | |
| 環状1号(南区) | 井土ヶ谷下町 | 中島町2丁目 | |
| 国道16号(保土ヶ谷区) | 上星川1丁目 | 上星川2丁目 | |
| 国道16号(磯子区) | 杉田5丁目 | 杉田5丁目 | |
| 国道357号(磯子区〜金沢区) | 杉田5丁目 | 冨岡東2丁目 | |
| ― (金沢区) | 幸浦1丁目 | 幸浦1丁目 | |
| 国道1号(戸塚区) | 上矢部 | 上矢部 | |
| 国道1号(戸塚区) | 戸塚町 | 戸塚町 | |
| 笹下釜利谷道路(金沢区) | 泥亀1丁目 | 谷津町 | |
| 国道16号(金沢区) | 堀口 | 富岡東6丁目 | |
| 国道16号(金沢区) | 富岡東3丁目 | 富岡東1丁目 | |
| 国道16号(金沢区) | 富岡東6丁目 | 富岡東5丁目 | |
| 国道16号(金沢区) | 富岡東5丁目 | 富岡東5丁目 | |
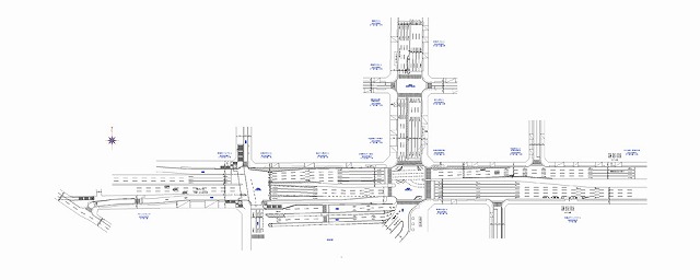
| 国道16号(西区〜保土ヶ谷区) | 戸部本町 | 天王町 | |
| 国道1号(鶴見区〜神奈川区) | 岸谷2丁目 | 新子安2丁目 | |
| 国道1号(神奈川区) | 新子安1丁目 | 入江1丁目 | |
| 国道15号(神奈川区) | 新町 | 神奈川2丁目 | |
| 国道1号(西区) | 高島2丁目 | 高島2丁目 | |
| 国道1号(西区) | 高島2丁目 | 高島2丁目 | |
| 国道1号(西区) | 高島2丁目 | 高島2丁目 | |
| 厚木街道(緑区) | 長津田6丁目 | 長津田みなみ台1丁目 | |
| ― (緑区) | 長津田みなみ台3丁目 | 長津田みなみ台4丁目 | |
| ― (緑区) | 霧が丘2丁目 | 霧が丘2丁目 | |
| ― (港北区) | 綱島西2丁目 | 綱島西2丁目 | |
| ― (港北区) | 綱島西3丁目 | 綱島西2丁目 | |
| 国道246号(宮前区〜青葉区) | 有馬9丁目 | 荏田町 | |
| ― (港南区) | 港南台2丁目 | 港南台6丁目 | |
| ― (港南区) | 港南台4丁目 | 港南台4丁目 | |
| 国道1号/15号(神奈川区) | 二ッ谷町 | 神奈川2丁目 | |
| ― (神奈川区) | 高島台 | 高島台 | |
| 鎌倉街道(南区) | 睦町2丁目 | 南吉田町4丁目 | |
| 国道1号(西区) | 戸部本町 | 中央2丁目 | |
| ― (鶴見区) | 市場富士見町 | 菅沢町 | |
| ― (旭区) | 鶴ヶ峰本町1丁目 | 鶴ヶ峰本町2丁目 | |
| ― (旭区) | 白根3丁目 | 鶴ヶ峰本町2丁目 | |
| ― (旭区) | 鶴ヶ峰本町2丁目 | 鶴ヶ峰本町2丁目 | |
| 国道357号(磯子区) | 新磯子町 | 新磯子町 | |
| 国道246号(宮前区〜青葉区) | 有馬9丁目 | 荏田町 | |
| 環状2号線(港南区) | 日野2丁目 | 日野中央1丁目 | |
| ― (港南区) | 日野中央1丁目 | 日野2丁目 | |
| 国道246号(青葉区) | 市ヶ尾町 | 下谷本町 | |
| 熊谷バイパス(青葉区) | 荏田町 | 荏田西1丁目 | |
| 国道246号(青葉区) | 藤が丘2丁目 | 青葉台1丁目 | |
| 国道246号(青葉区) | つつじヶ丘 | しらとり台 | |
| 国道16号(旭区) | 上川井町 | 上川井町 | |
| 国道246号(青葉区) | 荏田町 | 荏田町 | |
| 国道246号(青葉区) | 市ヶ尾町 | 市ヶ尾町 | |
| 国道16号(横須賀市〜金沢区) | 追浜本町1丁目 | 六浦東2丁目 | |
| 国道15号(鶴見区) | 鶴見中央4丁目 | 生麦4丁目 | |
| 国道16号(保土ヶ谷区) | 和田町1丁目 | 和田町2丁目 | |
| 国道246号(青葉区) | 荏田町 | 荏田西1丁目 | |
| 国道246号(青葉区) | 荏田西1丁目 | 市ヶ尾町 | |
| /国道16号(中区) | 長者町4丁目 | 長者町1丁目 | |
| ― (中区) | 長者町1丁目 | 万世町1丁目 | |
| 国道246号(青葉区) | 荏田西1丁目 | 市ヶ尾町 | |
| 国道246号(青葉区) | 荏田町 | 荏田西1丁目 | |
| ― (南区) | 浦舟町5丁目 | 中村町4丁目 | |
| ― (南区) | 東蒔田町 | 宿町1丁目 | |
| ― (南区) | 睦町1丁目 | 東蒔田町 | |
| ― (南区) | 高砂町3丁目 | 二葉町4丁目 | |
| 国道16号(南区) | 睦町1丁目 | 睦町1丁目 | |
| ― (南区) | 中村町3丁目 | 中村町3丁目 | |
| 産業道路(鶴見区) | 寛政町 | 寛政町 | |
| 産業道路(鶴見区) | 浜町2丁目 | 汐入町3丁目 | |
| 産業道路/潮風大通り(鶴見区) | 弁天町 | 小野町 | |
| 産業道路(鶴見区) | 小野町 | 小野町 | |
| 産業道路(鶴見区) | 生麦2丁目 | 生麦1丁目 | |
| 中央市場通り(神奈川区) | 東神奈川2丁目 | 青木町 | |
| 国道16号(旭区) | 川井本町 | 上川井町 | |
| ― (神奈川区) | 子安通り2丁目 | 子安通り2丁目 | |
| ― (神奈川区) | 浦島町 | 東神奈川2丁目 | |
| 国道1号(戸塚区) | 戸塚町 | 原宿町 | |
| 国道16号(保土ヶ谷区) | 和田町2丁目 | 上星川1丁目 | |
| 国道16号(旭区) | 鶴ヶ峰本町1丁目 | 鶴ヶ峰本町1丁目 | |
| 国道16号(旭区) | 鶴ヶ峰本町2丁目 | 鶴ヶ峰1丁目 | |
| 国道1号(神奈川区) | 富家町 | 浦島丘 | |
| ― (鶴見区) | 生麦4丁目 | 生麦1丁目 | |
| ― (鶴見区) | 生麦4丁目 | 生麦1丁目 | |
| 保土ヶ谷バイパス(旭区〜緑区) | 上川井町 | 長津田町 | |
| 国道1号(西区) | 戸部本町 | 中央2丁目 | |
| 国道16号(旭区〜緑区) | 上川井町 | 長津田町 | |
| 国道16号(旭区〜緑区) | 上川井町 | 長津田町 | |
| 国道16号(旭区) | 桐が作 | 四季美台 | |
| 産業道路(鶴見区) | 汐入町1丁目 | 浜町2丁目 | |
| ― (旭区) | 上川井町 | 下川井町 | |
| ― (旭区) | 下川井町 | 下川井町 | |
| ― (旭区) | 川井宿町 | 都岡町 | |
| 海軍道路(瀬谷区) | 本郷2丁目 | 瀬谷町 | |
| 海軍道路(瀬谷区) | 瀬谷町 | 北町 | |
| 産業道路(鶴見区) | 汐入町2丁目 | 朝日町1丁目 | |
| ― (都筑区〜港北区) | 東山田町 | 高田西1丁目 | |
| ― (金沢区) | 福浦2丁目 | 福浦3丁目 | |
| 鎌倉街道(南区) | 睦町1丁目 | 山王町4丁目 | |
| 国道16号(保土ヶ谷区) | 和田町1丁目 | 和田町1丁目 | |
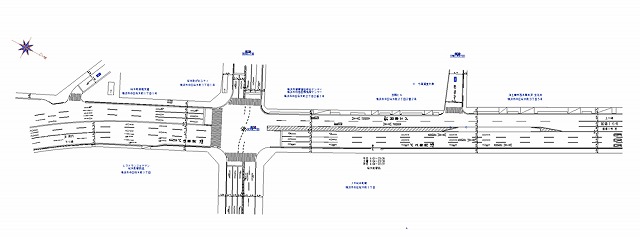
| 国道16号(西区〜保土ヶ谷区) | 南浅間町 | 天王町1丁目 | |
| 国道16号(南区) | 睦町2丁目 | 高砂町2丁目 | |
| 第一京浜(神奈川区) | 子安通2丁目 | 東神奈川2丁目 | |
| 国道16号(西区) | 高島2丁目 | 戸部本町 | |
| 国道1号(鶴見区) | 矢向2丁目 | 元宮2丁目 | |
| 国道1号(鶴見区) | 下末吉4丁目 | 北寺尾2丁目 | |
| 清洲橋通り(鶴見区) | 東寺尾6丁目 | 東寺尾中台 | |
| ― (神奈川区) | 子安通3丁目 | 子安通2丁目 | |
| ― (神奈川区) | 子安通2丁目 | 子安通1丁目 | |
| ― (神奈川区) | 東神奈川2丁目 | 神奈川2丁目 | |
| 国道1号(鶴見区) | 東寺尾6丁目 | 東寺尾5丁目 | |
| 国道16号(南区) | 睦町1丁目 | 二葉町3丁目 | |
| 国道16号(磯子区) | 久木町 | 磯子1丁目 | |
| 伊勢佐木町通り/伊勢佐木線(中区) | 曙町5丁目 | 曙町4丁目 | |
| 国道16号(中区) | 桜木町1丁目 | 桜木町3丁目 | |
| 新横浜通り(中区) | 桜木町4丁目 | 桜木町6丁目 | |
| 国道16号(西区) | 中央2丁目 | 浜松町 | |
| 国道1号(鶴見区〜神奈川区) | 東寺尾4丁目 | 新子安2丁目 | |
| 国道16号(西区〜保土ヶ谷区) | 南浅間町 | 宮田町1丁目 | |
| 国道16号(神奈川区〜西区) | 高島2丁目 | 高島1丁目 | |
| ― (鶴見区) | 東扇島 | 東扇島 | |
| 国道16号(西区) | 桜木町6丁目 | 桜木町6丁目 | |
| 国道1号(神奈川区) | 金港町 | 金港町 | |
| 国道16号(保土ヶ谷区) | 宮田町1丁目 | 宮田町3丁目 | |
| 環状1号(神奈川区) | 立町 | 台町 | |
| 環状1号(神奈川区) | 青木町 | 金港町 | |
| ― (鶴見区) | 鶴見中央5丁目 | 生麦3丁目 | |
| 国道16号(磯子区) | 磯子3丁目 | 磯子2丁目 | |
| 国道16号(磯子区) | 磯子2丁目 | 磯子1丁目 | |
| 国道246号(青葉区) | 荏田町 | 荏田西1丁目 | |
| 横須賀街道(磯子区) | 杉田4丁目 | 中原2丁目 | |
| 末吉大通り(鶴見区) | 下末吉3丁目 | 下末吉2丁目 | |
| 第二京浜(神奈川区) | 富家町 | 二ッ谷町 | |
| 第二京浜(神奈川区) | 二ッ谷町 | 反町1丁目 | |
| 第二京浜(神奈川区) | 青木町 | 栄町 | |
| 神奈川産業道路(神奈川区) | 子安台1丁目 | 入江1丁目 | |
| 中原街道(旭区) | 矢指町 | 下川井町 | |
| 中原街道(旭区) | 下川井町 | 都岡町 | |
| 国道1号(鶴見区) | 東寺尾中台 | 北寺尾1丁目 | |
| 国道1号(神奈川区) | 松本町5丁目 | 松本町3丁目 | |
| 国道16号(鶴見区) | 鶴見中央3丁目 | 鶴見中央4丁目 | |
| 国道16号(金沢区) | 瀬戸 | 谷津町 | |
| 国道16号(旭区) | 鶴ヶ峰本町 | 今宿東町 | |
| 国道16号(保土ヶ谷区〜旭区) | 西谷町 | 白根2丁目 | |
| 国道16号(旭区) | 白根2丁目 | 白根1丁目 | |
| ― (瀬谷区) | 北町 | 北町 | |
| 国道16号(旭区) | 鶴ヶ峰本町1丁目 | 今宿東町 | |
| 白根通り(旭区) | 白根1丁目 | 鶴ヶ峰2丁目 | |
| 国道16号(磯子区) | 森2丁目 | 森2丁目 | |
| 産業道路(鶴見区) | 生麦2丁目 | 生麦2丁目 | |
| 国道357号(金沢区) | 富岡東2丁目 | 富岡東2丁目 | |
| 国道1号(西区) | 戸部本町 | 浜松町 | |
| 第二京浜国道(鶴見区) | 尻手2丁目 | 下末吉1丁目 | |
| ― (鶴見区) | 中央4丁目 | 中央5丁目 | |
| 国道1号(神奈川区) | 西神奈川1丁目 | 桐畑 | |
| 国道1号(神奈川区) | 栄町 | 金港町 | |
| 国道16号(金沢区) | 瀬戸 | 泥亀1丁目 | |
| 国道16号(金沢区) | 六浦東3丁目 | 六浦東2丁目 | |
| 国道1号(西区) | 戸部本町 | 浜松町 | |
| 国道16号(金沢区) | 谷津町 | 片吹 | |
| 国道16号(金沢区) | 六郷東1丁目 | 六郷東1丁目 | |
| 国道246号(緑区) | 長津田1丁目 | 長津田1丁目 | |
| 環状3号(金沢区〜磯子区) | 富岡東1丁目 | 杉田5丁目 | |
| 国道16号(金沢区) | 富岡東3丁目 | 富岡東1丁目 | |
| 国道16号(磯子区) | 杉田5丁目 | 杉田1丁目 | |
| 国道16号(鶴見区) | 鶴見中央3丁目 | 鶴見中央4丁目 | |
| 国道16号(鶴見区) | 市場大和町 | 菅沢町 | |
| 国道16号(磯子区) | 滝頭3丁目 | 丸山1丁目 | |
| 国道16号(磯子区) | 森2丁目 | 磯子3丁目 | |
| 尾上町通/関内大通(中区) | 尾上町3丁目 | 尾上町6丁目 | |
| 国道16号(中区) | 尾上町5丁目 | 桜木町1丁目 | |
| 国道16号(中区) | 羽衣町3丁目 | 真砂町4丁目 | |
| 環状2号(港北区) | 新横浜2丁目 | 新横浜3丁目 | |
| 国道15号(鶴見区) | 鶴見中央3丁目 | 鶴見中央5丁目 | |
| 国道15号(鶴見区) | 市場富士見町 | 菅沢町 | |
| 国道1号(戸塚区) | 戸塚町 | 汲沢町 | |
| 国道1号(神奈川区) | 浦島丘 | 東神奈川2丁目 | |
| 国道1号(西区) | 戸部本町 | 中央1丁目 | |
| 国道16号(南区〜中区) | 吉野町1丁目 | 曙町5丁目 | |
| 国道16号(中区) | 曙町1丁目 | 長者町6丁目 | |
| 国道16号(中区) | 長者町6丁目 | 羽衣町2丁目 | |
| 関内大通り/尾上町通り/馬車道/関内川端通り(中区) | 尾上町3丁目 | 尾上町6丁目 | |
| 国道16号(中区) | 桜木町4丁目 | 桜木町4丁目 | |
| 鎌倉街道(南区) | 陸町1丁目 | 山王町4丁目 | |
| 新横浜通り(西区) | 桜木町4丁目 | 桜木町6丁目 | |
| 国道1号(西区) | 戸部本町 | 浜松町 | |
| 国道16号(中区) | 桜木町1丁目 | 桜木町3丁目 | |
| 国道15号(神奈川区) | 東神奈川2丁目 | 東神奈川2丁目 | |
| 国道15号(神奈川区) | 浦島町 | 東神奈川2丁目 | |
| 昭和坂(鶴見区) | 諏訪坂 | 北寺尾1丁目 | |
| 国道1号(鶴見区) | 東寺尾6丁目 | 東寺尾6丁目 | |
| 末吉大通り(鶴見区) | 下末吉3丁目 | 下末吉4丁目 | |
| 国道1号(鶴見区) | 下末吉1丁目 | 諏訪坂 | |
| 国道1号(鶴見区) | 岸谷2丁目 | 東寺尾2丁目 | |
| 国道15号(鶴見区) | 生麦4丁目 | 生麦3丁目 | |
| 国道16号(西区〜保土ヶ谷区) | 南浅間町 | 宮田町1丁目 | |
| 国道16号(保土ヶ谷区) | 川辺町 | 和田1丁目 | |
| 鎌倉街道(南区) | 山王町5丁目 | 吉野町2丁目 | |
| 国道357号(金沢区) | 幸浦2丁目 | 福浦1丁目 | |
| 国道357号(金沢区) | 福浦2丁目 | 福浦3丁目 | |
| 笹下釜利谷道路(金沢区) | 泥亀1丁目 | 谷津町 | |
| 尾上町通り/関内大通り/関内川端通り(中区) | 尾上町2丁目 | 桜木町1丁目 | |
| 末吉大通り(鶴見区) | 尻手3丁目 | 下末吉1丁目 | |
| 国道246号(緑区) | 長津田町 | 長津田町 | |
| 国道16号(保土ヶ谷区) | 宮田町1丁目 | 川辺町 |

