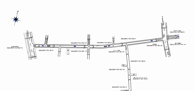
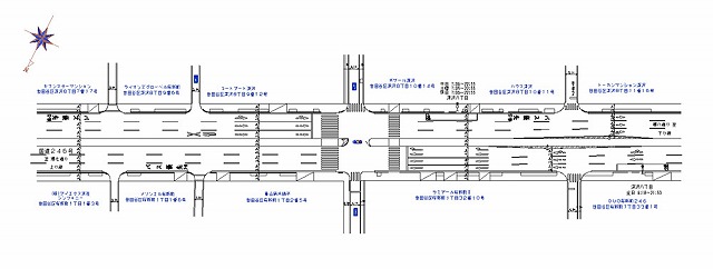
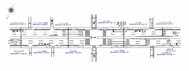
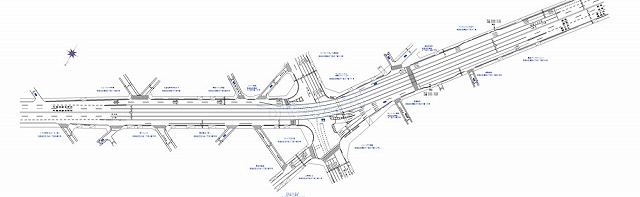
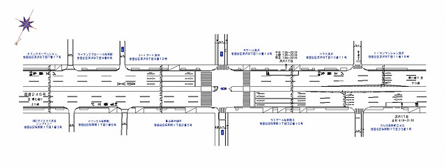
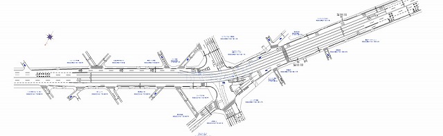
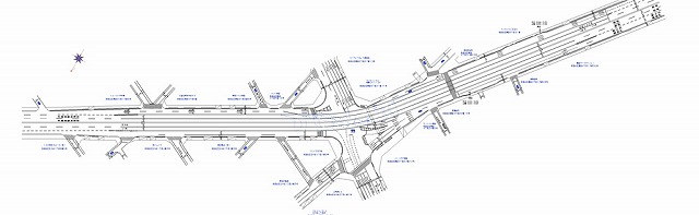
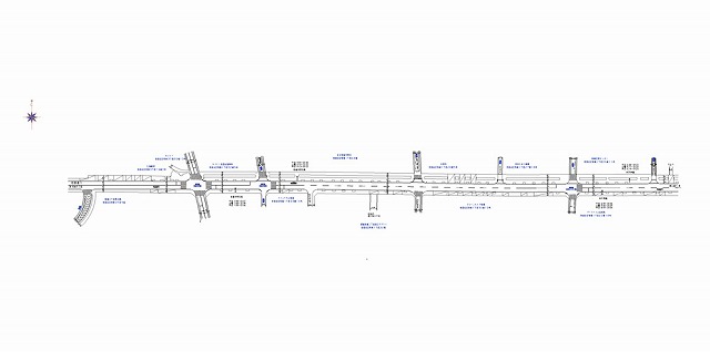
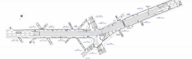
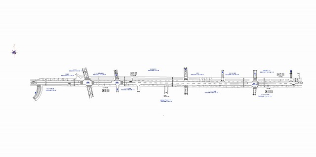
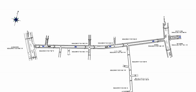
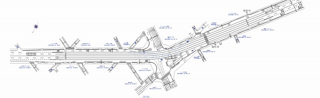
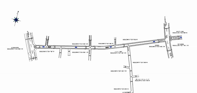
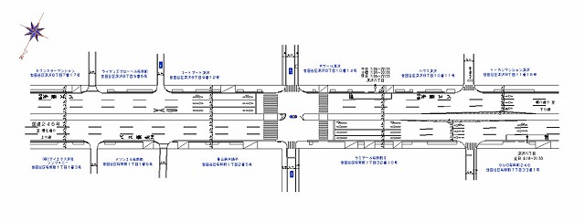
東京都 世田谷区実績のご案内。24条申請に必要な交通規制図、道路規制図作成はTPN。作業帯図作成から交通量調査、竣工図作成もお任せください。

東京都 世田谷区
| 本線名 |
左端 |
右端 |
規制図 |
| 希望丘通り |
八幡山1丁目 |
船橋4丁目 |
|
| 荒玉水道道路 |
喜多見5丁目 |
喜多見1丁目 |
|
| 駒八通り |
等々力7丁目 |
深沢1丁目 |
|
| 茶沢通り/淡島通り |
代沢4丁目 |
太子堂5丁目 |
|
| |
桜3丁目 |
桜3丁目 |
|
| |
若林5丁目 |
若林5丁目 |
|
| |
下馬3丁目 |
下馬3丁目 |
|
| |
粕谷2丁目 |
粕谷1丁目 |
|
| |
松原1丁目 |
松原5丁目 |
|
| |
赤堤1丁目 |
赤堤1丁目 |
|
| 国道246号 |
池尻3丁目 |
東山3丁目 |
|
| |
駒沢2丁目 |
上馬4丁目 |
|
| 井ノ頭通り |
大山町 |
大原2丁目 |
|
| |
上用賀4丁目 |
上用賀4丁目 |
|
| 淡島通り |
太子堂3丁目 |
代沢4丁目 |
|
| 淡島通り |
代沢4丁目 |
三宿2丁目 |
|
| 多摩堤通り |
玉堤1丁目 |
玉堤2丁目 |
|
| 玉川通り |
池尻2丁目 |
三宿1丁目 |
|
| 世田谷通り/玉川通り |
三軒茶屋1丁目 |
太子堂4丁目 |
|
| 環八通り |
瀬田3丁目 |
瀬田4丁目 |
|
| 国道246号 |
深沢8丁目 |
深沢8丁目 |
|
| 国道20号 |
上高井戸1丁目 |
北烏山1丁目 |
|
| 井ノ頭通り |
北沢4丁目 |
北沢4丁目 |
|
| 用賀中町通り |
用賀2丁目 |
玉川台1丁目 |
|
| 環七通り/玉川通り/自由通り |
上馬2丁目 |
駒沢2丁目 |
|
| 国道246号 |
三宿1丁目 |
上馬2丁目 |
|
| 国道20号 |
松原1丁目 |
松原2丁目 |
|
| 国道246号 |
瀬田3丁目 |
瀬田2丁目 |
|
| 国道246号 |
瀬田3丁目 |
瀬田2丁目 |
|
| |
宇奈根1丁目 |
宇奈根1丁目 |
|
| 弦巻通り |
弦巻2丁目 |
駒沢2丁目 |
|
| 多摩堤通り |
玉川3丁目 |
玉川3丁目 |
|
| 環八通り/城山通り/千歳通り |
砧2丁目 |
千歳台3丁目 |
|
| 環七通り/世田谷通り |
上馬4丁目 |
若林3丁目 |
|
| 淡島通り/環七通り |
若林5丁目 |
太子堂5丁目 |
|
| 環八通り |
八幡山2丁目 |
烏山1丁目 |
|
| 旧山手通り |
池尻2丁目 |
道玄坂1丁目 |
|
| |
鎌田2丁目 |
鎌田1丁目 |
|
| 環八通り |
南烏山1丁目 |
高井戸1丁目 |
|
| 環七通り |
代田4丁目 |
和泉1丁目 |
|
| 環八通り |
船橋4丁目 |
八幡山2丁目 |
|
| 国道20号 |
北烏山9丁目 |
南烏山6丁目 |
|
| 国道20号/環七通り |
笹塚1丁目 |
松原1丁目 |
|
| 目黒通り |
等々力6丁目 |
等々力4丁目 |
|
| 玉川通り/環七通り/自由通り/駒沢公園通り |
三軒茶屋1丁目 |
新町1丁目 |
|
| 井ノ頭通り/環七通り |
北沢4丁目 |
大原2丁目 |
|
| 弦巻通り/駒留通り/環七通り |
上馬4丁目 |
三軒茶屋2丁目 |
|
| 環八通り |
瀬田3丁目 |
玉川台2丁目 |
|
| 教育センター通り |
桜新町2丁目 |
鶴巻4丁目 |
|
| 目黒通り |
等々力6丁目 |
等々力4丁目 |
|
| 国道246号 |
瀬田2丁目 |
玉川3丁目 |
|
| 国道246号 |
太子堂1丁目 |
上馬1丁目 |
|
| |
梅丘2丁目 |
梅丘1丁目 |
|
| |
弦巻2丁目 |
弦巻2丁目 |
|
| |
上馬2丁目 |
上馬2丁目 |
|
| |
上馬2丁目 |
上馬2丁目 |
|
| 上野毛通り |
上野毛3丁目 |
上野毛2丁目 |
|
| 梅丘通り |
代田1丁目 |
代沢4丁目 |
|
| 茶沢通り |
太子堂4丁目 |
太子堂2丁目 |
|
| |
三軒茶屋1丁目 |
太子堂1丁目 |
|
| |
下馬2丁目 |
下馬1丁目 |
|
| |
成城4丁目 |
成城4丁目 |
|
| |
奥沢7丁目 |
玉川田園調布1丁目 |
|
| 井ノ頭通り |
北沢5丁目 |
大山町 |
|
| 目黒通り |
等々力3丁目 |
等々力7丁目 |
|
| 吉祥寺通り |
給田3丁目 |
北野5丁目 |
|
| ユリの木通り |
赤堤1丁目 |
赤堤1丁目 |
|
| |
桜丘5丁目 |
桜丘5丁目 |
|
| |
桜丘5丁目 |
桜丘3丁目 |
|
| |
桜丘4丁目 |
桜丘3丁目 |
|
| |
桜丘4丁目 |
桜丘4丁目 |
|
| |
桜丘4丁目 |
桜丘4丁目 |
|
| |
桜丘4丁目 |
上用賀6丁目 |
|
| |
経堂5丁目 |
桜丘2丁目 |
|
| |
経堂5丁目 |
桜丘1丁目 |
|
| |
経堂5丁目 |
桜丘1丁目 |
|
| |
桜丘1丁目 |
桜丘1丁目 |
|
| 環八通り/世田谷通り |
大蔵1丁目 |
砧1丁目 |
|
| 環七通り/淡島通り |
若林5丁目 |
代田3丁目 |
|
| 弦巻通り |
区弦巻3丁目 |
区弦巻3丁目 |
|
| 弦巻通り |
区弦巻3丁目 |
区弦巻3丁目 |
|
| 弦巻通り |
区弦巻3丁目 |
区弦巻3丁目 |
|
| 世田谷通り/環八通り |
上用賀6丁目 |
大蔵2丁目 |
|
| 環八通り |
砧1丁目 |
砧2丁目 |
|
| 国道20号 |
笹塚1丁目 |
大原2丁目 |
|
| 国道20号 |
笹塚1丁目 |
大原2丁目 |
|
| 国道20号 |
南烏山4丁目 |
南烏山6丁目 |
|
| 環八通り |
瀬田4丁目 |
瀬田5丁目 |
|
| 玉川通り |
瀬田4丁目 |
玉川3丁目 |
|
| 国道246号 |
玉川3丁目 |
玉川3丁目 |
|
| 環七通り |
大原1丁目 |
松原1丁目 |
|
| 環七通り |
代田2丁目 |
代田5丁目 |
|
| |
船橋1丁目 |
船橋3丁目 |
|
| 環七通り |
代田1丁目 |
代田4丁目 |
|
| 国道20号 |
大原1丁目 |
松原2丁目 |
|
| |
等々力2丁目 |
尾山台3丁目 |
|
| 多摩堤通り |
大蔵3丁目 |
鎌田3丁目 |
|
| 目黒通り |
等々力4丁目 |
等々力2丁目 |
|
| 世田谷通り |
大蔵3丁目 |
喜多見6丁目 |
|
| 環七通り |
若林5丁目 |
代田3丁目 |
|
| |
成城1丁目 |
砧7丁目 |
|
| |
瀬田4丁目 |
瀬田4丁目 |
|
| |
成城2丁目 |
成城7丁目 |
|
| |
世田谷2丁目 |
桜1丁目 |
|
| 駒沢通り/駒沢公園通り/駒八通り |
深沢7丁目 |
深沢2丁目 |
|
| 多摩堤通り |
玉堤1丁目 |
玉堤1丁目 |
|
| 多摩堤通り |
野毛1丁目 |
玉堤2丁目 |
|
| 多摩堤通り |
玉堤1丁目 |
玉堤1丁目 |
|
| 国道246号 |
玉川2丁目 |
玉川3丁目 |
|
| 駒沢通り/環七通り |
下馬6丁目 |
柿の木坂2丁目 |
|
| 井草通り/新青梅街道/千川通り |
下石神井4丁目 |
下石神井2丁目 |
|
| 井ノ頭通り/環七通り |
大山町 |
大原2丁目 |
|
| 井ノ頭通り |
大山町 |
大原2丁目 |
|
| 玉川通り/環八通り |
玉川台1丁目 |
瀬田4丁目 |
|
| 多摩堤通り |
鎌田3丁目 |
玉川3丁目 |
|
| |
三宿1丁目 |
三宿1丁目 |
|
| 環七通り |
代田4丁目 |
羽根木1丁目 |
|
| 環八通り |
千歳台1丁目 |
千歳台4丁目 |
|
| 環八通り |
砧2丁目 |
千歳台1丁目 |
|
| 環七通り |
上馬2丁目 |
上馬2丁目 |
|
| 多摩堤通り |
大蔵6丁目 |
喜多見5丁目 |
|
▲ページのトップに戻る