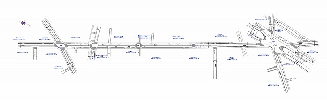
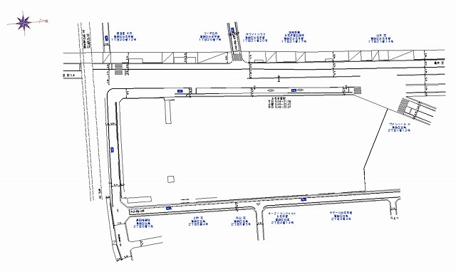
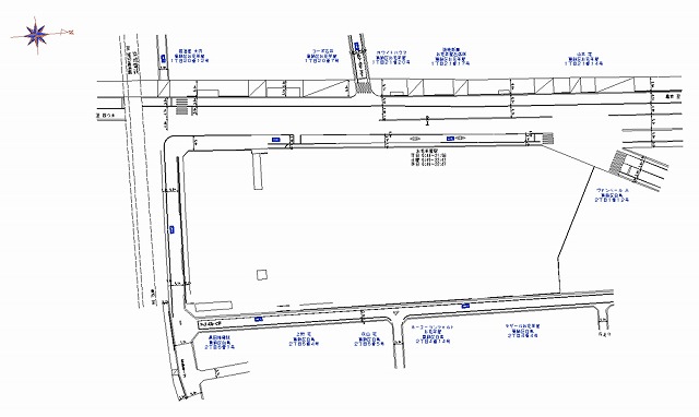
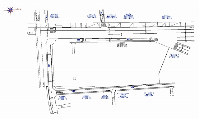
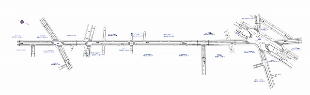
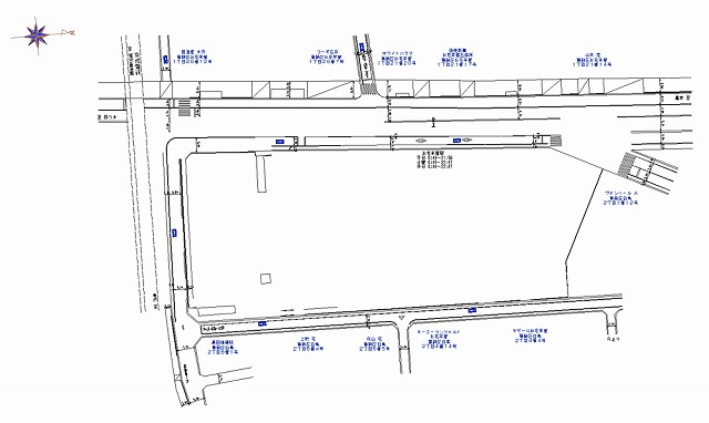
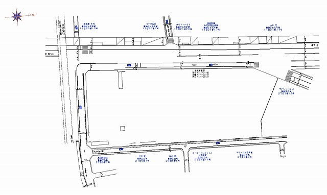
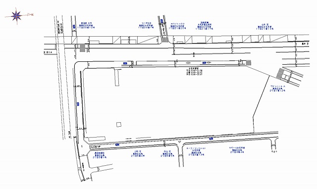
東京都 葛飾区実績のご案内。24条申請に必要な交通規制図、道路規制図作成はTPN。作業帯図作成から交通量調査、竣工図作成もお任せください。
    
        
	    
東京都 葛飾区
| 本線名 | 
左端 | 
右端 | 
規制図 | 
| 平和橋通り | 
小菅1丁目 | 
小菅1丁目 | 
 | 
| 環七通り | 
亀有5丁目 | 
亀有3丁目 | 
 | 
| 蔵前橋通り | 
西新小岩2丁目 | 
西新小岩2丁目 | 
 | 
| 国道6号 | 
新宿4丁目 | 
金町4丁目 | 
 | 
| 国道6号 | 
新宿4丁目 | 
新宿2丁目 | 
 | 
| 国道6号 | 
金町6丁目 | 
金町3丁目 | 
 | 
| 水戸街道 | 
白鳥3丁目 | 
青戸4丁目 | 
 | 
|   | 
東四つ木3丁目 | 
東四つ木4丁目 | 
 | 
| 奥戸街道 | 
奥戸7丁目 | 
奥戸2丁目 | 
 | 
| 国道6号 | 
金町1丁目 | 
金町3丁目 | 
 | 
|   | 
金町5丁目 | 
金町6丁目 | 
 | 
| 国道6号 | 
青戸4丁目 | 
青戸8丁目 | 
 | 
|   | 
東金町3丁目 | 
東金町4丁目 | 
 | 
|   | 
西新小岩3丁目 | 
西新小岩1丁目 | 
 | 
|   | 
東金町5丁目 | 
東金町5丁目 | 
 | 
| 平和橋通り | 
東新小岩8丁目 | 
東新小岩5丁目 | 
 | 
| 国道6号 | 
白鳥2丁目 | 
青戸8丁目 | 
 | 
|   | 
宝町2丁目 | 
お花茶屋2丁目 | 
 | 
| 蔵前橋通り | 
東新小岩3丁目 | 
東新小岩4丁目 | 
 | 
| 平和橋通り | 
小菅1丁目 | 
小菅1丁目 | 
 | 
| 国道6号 | 
青戸8丁目 | 
新宿2丁目 | 
 | 
|   | 
東新小岩5丁目 | 
東新小岩6丁目 | 
 | 
| 国道6号 | 
四つ木3丁目 | 
四つ木4丁目 | 
 | 
| 平和橋通り | 
四つ木4丁目 | 
四つ木5丁目 | 
 | 
|   | 
東金町5丁目 | 
東金町5丁目 | 
 | 
|   | 
東堀切2丁目 | 
東堀切3丁目 | 
 | 
|   | 
新小岩1丁目 | 
新小岩1丁目 | 
 | 
|   | 
四つ木3丁目 | 
四つ木3丁目 | 
 | 
|   | 
四つ木3丁目 | 
四つ木1丁目 | 
 | 
|   | 
四つ木1丁目 | 
四つ木3丁目 | 
 | 
|   | 
堀切4丁目 | 
小菅2丁目 | 
 | 
|   | 
白鳥2丁目 | 
白鳥2丁目 | 
 | 
|   | 
立石6丁目 | 
立石8丁目 | 
 | 
|   | 
西亀有1丁目 | 
西亀有1丁目 | 
 | 
|   | 
東金町7丁目 | 
東金町5丁目 | 
 | 
| 平和橋通り | 
小菅1丁目 | 
小菅3丁目 | 
 | 
| 堀切中央通り | 
堀切7丁目 | 
堀切4丁目 | 
 | 
| 蔵前橋通り | 
東新小岩1丁目 | 
東新小岩2丁目 | 
 | 
| 国道6号 | 
四つ木5丁目 | 
立石5丁目 | 
 | 
|   | 
西亀有1丁目 | 
西亀有1丁目 | 
 | 
|   | 
青戸6丁目 | 
青戸6丁目 | 
 | 
| 環七通り | 
青戸6丁目 | 
奥戸8丁目 | 
 | 
| 平和橋通り | 
西新小岩4丁目 | 
西新小岩5丁目 | 
 | 
|   | 
東堀切2丁目 | 
お花茶屋3丁目 | 
 | 
| 平和橋通り | 
堀切3丁目 | 
立石2丁目 | 
 | 
|   | 
南水元3丁目 | 
東水元2丁目 | 
 | 
|   | 
西亀有1丁目 | 
西亀有3丁目 | 
 | 
|   | 
東堀切1丁目 | 
お花茶屋1丁目 | 
 | 
| 柴又街道 | 
柴又3丁目 | 
柴又6丁目 | 
 | 
|   | 
東堀切3丁目 | 
堀切7丁目 | 
 | 
|   | 
お花茶屋3丁目 | 
亀有1丁目 | 
 | 
|   | 
堀切7丁目 | 
堀切6丁目 | 
 | 
|   | 
亀有3丁目 | 
亀有3丁目 | 
 | 
|   | 
亀有3丁目 | 
亀有3丁目 | 
 | 
|   | 
亀有3丁目 | 
亀有3丁目 | 
 | 
|   | 
西亀有3丁目 | 
亀有4丁目 | 
 | 
|   | 
東水元2丁目 | 
東水元2丁目 | 
 | 
|   | 
お花茶屋1丁目 | 
白鳥2丁目 | 
 | 
|   | 
南水元2丁目 | 
南水元2丁目 | 
 | 
|   | 
南水元4丁目 | 
南水元4丁目 | 
 | 
| 旧水戸街道 | 
東金町3丁目 | 
東金町5丁目 | 
 | 
|   | 
白鳥3丁目 | 
亀有4丁目 | 
 | 
|   | 
お花茶屋3丁目 | 
亀有2丁目 | 
 | 
        ▲ページのトップに戻る